21 Ballacottier Meadow, Douglas

£349,950

Key Features

  • Modern Semi-Detached house on a large plot
  • Cul-de-sac location with rural views to the front
  • Within walking distance of the Isle of Man Business Park
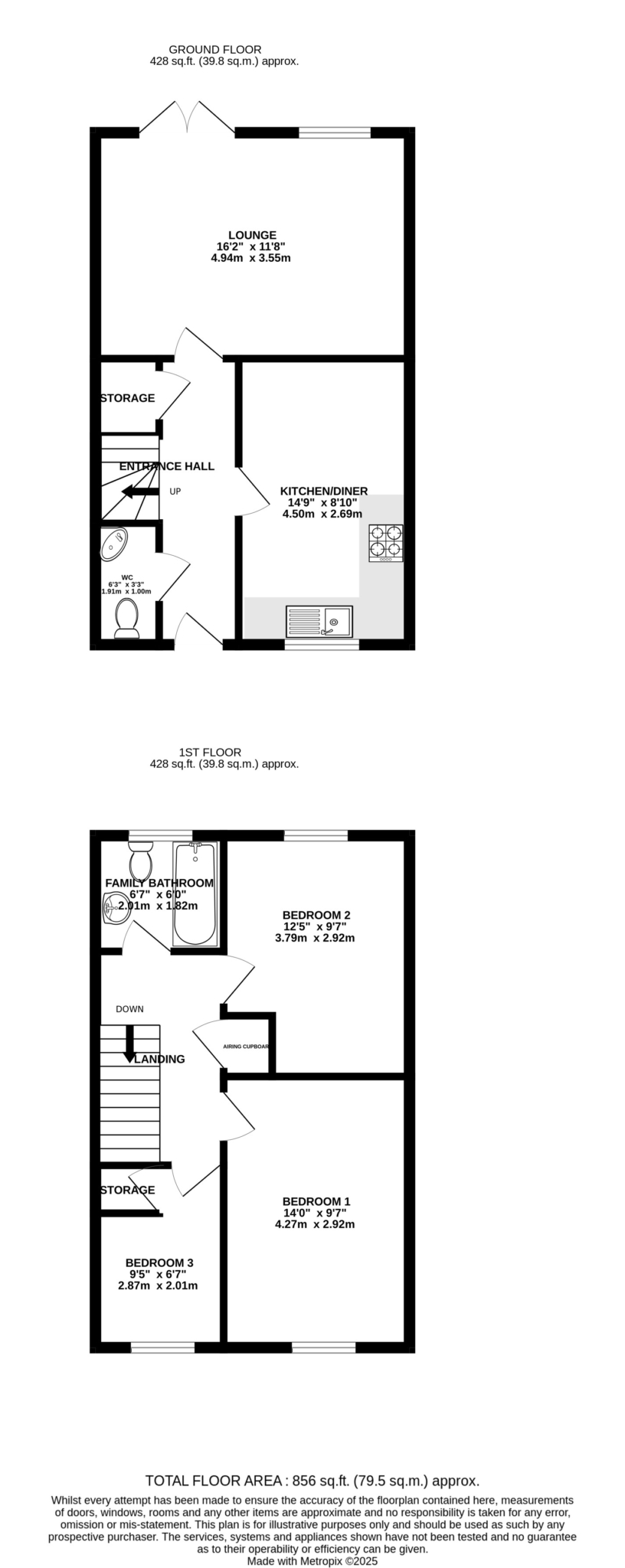
  • Lounge, Kitchen Diner, Downstairs WC
  • 3 Bedrooms, Bathroom
  • Excellent sized rear garden
  • Off street parking for 2 cars
  • uPVC double glazed throughout, Gas fired central heating
  • No onward chain

Overview

Black Grace Cowley are delighted to offer 21 Ballacottier Meadow to the market. This modern semi-detached home is situated towards the end of a private cul-de-sac with views across the neighbouring farmland. The property occupies an excellent sized plot with a lawned garden to the front and off street parking for two vehicles.

uPVC double glazed door provides access into the entrance hall with an understairs storage cupboard and carpeted stairs to the first floor. Off the entrance hall is the downstairs WC which has a double glazed window, wash hand basin and WC. To the front of the property is the kitchen diner which is fitted with a range of beech effect base and wall units with laminate worktops, integrated electric oven and four ring gas hob, fridge freezer, space for a washing machine and tumble dryer. uPVC double glazed window to the front aspect enjoying the rural aspect. Gas combination boiler. Lastly off the entrance hall is a door into the lounge which stretches across the back of the property, it is an excellent sized living space with a double glazed window overlooking the rear garden and a set of French patio doors leading out.

On the first floor there is a generous landing with a built in airing cupboard and loft hatch. Bedroom 1 is situated to the front of the property and is a good sized double bedroom, Bedroom 2 is situated to the rear and again is a good sized double bedroom. Bedroom 3 is situated to the front of the property with an over stairs storage cupboard, a good sized single bedroom. The bathroom is fully tiled with a panelled bath with shower over, wash hand basin and WC.

To the rear of the property there is a really good sized garden which is mainly laid to lawn with shrub borders and timber fencing to all three sides with a gate giving access to the off road parking. Concrete path immediately off the back of the house which leads to a hard standing with a shed.

The property is well located and within walking distance of the Isle of man Business Park, Cycle 360, Horse and Plough and a regular bus route. A short drive into Douglas Town Centre and a 15-20 minute drive to Peel and the south of the island.

At a Glance

  • Price
    £349,950
  • Status
    For Sale
  • Bedrooms
    3
  • Reception Rooms
    1
  • Bathrooms
    1
  • Heating
    Gas fired central heating
  • Front Garden
    Yes
  • Rear Garden
    Yes
  • Garage
    No

Contact the Agent

Contact the Agent

Mark Canty

mrc@blackgracecowley.com

(01624) 645555

Key Features

  • Modern Semi-Detached house on a large plot
  • Cul-de-sac location with rural views to the front
  • Within walking distance of the Isle of Man Business Park
  • Lounge, Kitchen Diner, Downstairs WC
  • 3 Bedrooms, Bathroom
  • Excellent sized rear garden
  • Off street parking for 2 cars
  • uPVC double glazed throughout, Gas fired central heating
  • No onward chain

Recently Viewed Properties

21 Ballacottier Meadow
Douglas

£349,950

  • 3
  • 1
  • 1