40 St Germans Place

£285,000

Key Features

  • Quirky former Farm Cottage
  • Sitting on a generous plot with large garden
  • Lounge/diner, Kitchen
  • Three Bedrooms, Bathroom
  • South facing Garden side and rear
  • Off-Road parking space
  • Oil fired central heating

Overview

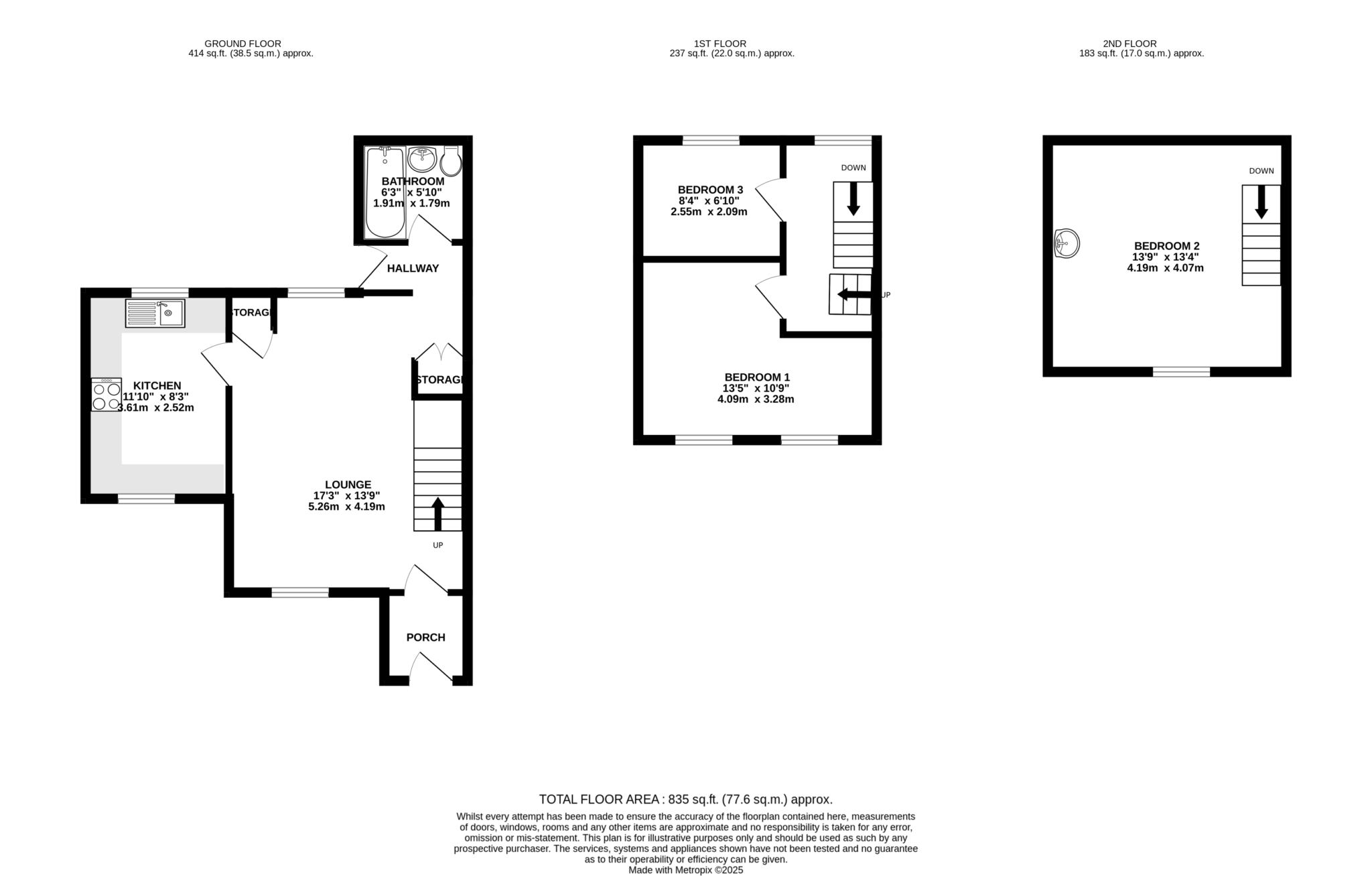
Black Grace Cowley are pleased to present 40 St Germans Place to the market. This quirky former farm workers cottage has been modernised and extended and sits on a generous plot at the end of a cul-de-sac. Within walking distance to Old Peel, the marina, bars, restaurants and local amenities. Centrally located on the Island with an easy commute to Ramsey, Peel, Douglas and the airport in the South. At the front is a porch with part-glazed door leading into the lounge/diner and stairs to the 1st floor. Off the lounge to the left is a modern kitchen and to the right is the bathroom with bath, shower over, sink and WC. There is also a door leading to the rear garden. On the first floor are two bedrooms, one double at the front and a single at the back. A door on the landing leads to an attic bedroom with wash-hand basin, under eaves storage and velux window. At the front is off-road parking for one vehicle and a sunny, south facing garden to the front, side and back of this generous plot. There are fruit trees, mature shrubs the original ‘Thie Veg’ provides some storage and there is a large shed, ideal for gardening equipment, bike storage that can be accessed from the rear lane.

uPVC Double Glazing. Oil Central Heating. Ideal for 1st-time buyers. Viewings highly recommended.

At a Glance

  • Price
    £285,000
  • Status
    Under Offer
  • Bedrooms
    3
  • Reception Rooms
    1
  • Bathrooms
    1
  • Heating
    Oil Fired Central Heating
  • Front Garden
    Yes
  • Rear Garden
    Yes
  • Garage
    No

Contact the Agent

Contact the Agent

Ali Wood

ali@blackgracecowley.com

01624 845696

Key Features

  • Quirky former Farm Cottage
  • Sitting on a generous plot with large garden
  • Lounge/diner, Kitchen
  • Three Bedrooms, Bathroom
  • South facing Garden side and rear
  • Off-Road parking space
  • Oil fired central heating

Recently Viewed Properties

Under Offer
40 St Germans Place
Peel

£285,000

  • 3
  • 1
  • 1