50 Cooil Drive, Douglas

£299,950

Key Features

  • Fully refurbished semi-detached Bungalow
  • Situated in a quiet cul-de-sac location
  • Close to local amenities including the Business Park and Bus Routes
  • Open-plan Kitchen, Diner, Living area
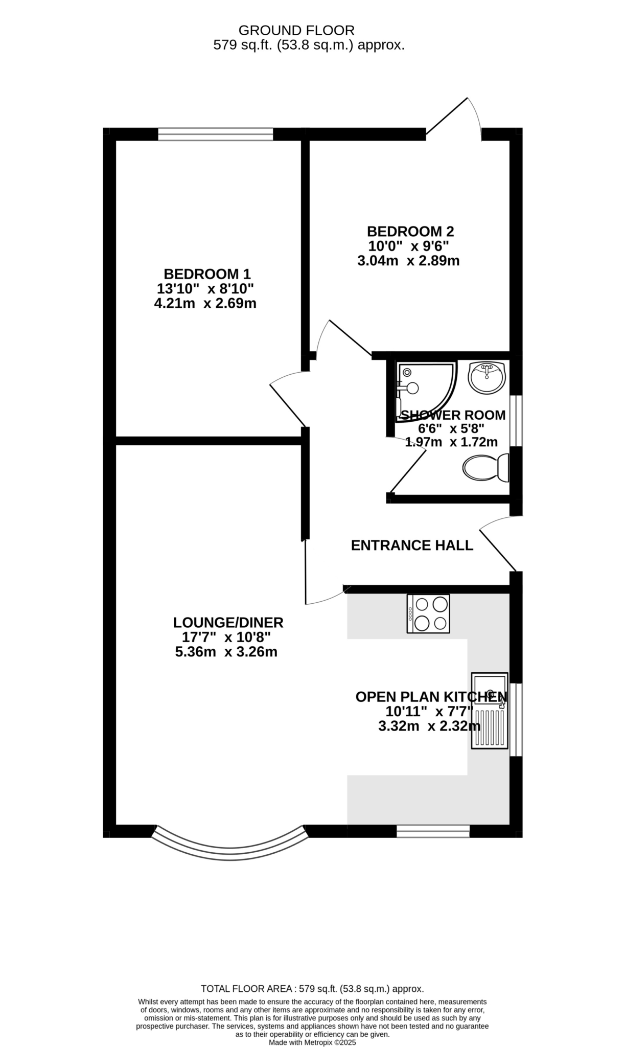
  • 2 Bedrooms, Modern Shower Room
  • South West facing patio garden
  • Off street parking for 3 vehicles
  • Gas Central Heating, uPVC double glazed throughout
  • No onward chain

Overview

Black Grace Cowley are delighted to offer 50 Cooil Drive to the market. This beautifully refurbished, semi-detached two bedroom bungalow sits on a generous sized plot within a quiet cul-de-sac in Braddan. To the front of the property there is an artificial grass outdoor area, with off street parking that continues up the side of the bungalow and accommodates 3+ vehicles.

Upon entering the property there is a composite door leading into the entrance hall with a loft hatch giving access to the roof space. Off the entrance hall there is a door into the large open-plan lounge, diner and kitchen. The kitchen is fitted with a range of contemporary grey wall and base units with chrome handles, laminate worktops and an integrated oven and hob. The lounge/diner benefits from a large double glazed bay window to the front aspect. In addition to the main living space there are two bedrooms, bedroom 1 is a large double with a uPVC double glazed window overlooking the rear garden, bedroom 2 is a good size double with a uPVC double glazed door giving access out to the rear garden. Lastly off the hall is the modernised shower room which is fitted with a walk in corner shower, wash hand basin with vanity unit below and illuminated mirror above and WC

The property has been refurbished to an excellent standard throughout including windows, kitchen, bathroom and doors.

The property is situated within walking distance of the Isle of Man Business Park, close to local bus routes giving easy access into Douglas Town Centre and just a 15-20 minute drive from Ronaldsway Airport.

Offered for sale with no onward chain. Please call Black Grace Cowley on 01624 645555 to arrange a viewing.

At a Glance

  • Price
    £299,950
  • Status
    Under Offer
  • Bedrooms
    2
  • Reception Rooms
    1
  • Bathrooms
    1
  • Heating
    Gas fired central heating
  • Front Garden
    Yes
  • Rear Garden
    Yes
  • Garage
    No

Contact the Agent

Contact the Agent

Rochelle Ingham

rochelle@blackgracecowley.com

01624 645564

Key Features

  • Fully refurbished semi-detached Bungalow
  • Situated in a quiet cul-de-sac location
  • Close to local amenities including the Business Park and Bus Routes
  • Open-plan Kitchen, Diner, Living area
  • 2 Bedrooms, Modern Shower Room
  • South West facing patio garden
  • Off street parking for 3 vehicles
  • Gas Central Heating, uPVC double glazed throughout
  • No onward chain

Recently Viewed Properties

Under Offer
50 Cooil Drive
Douglas

£299,950

  • 2
  • 1
  • 1