79 Greenlands Avenue, Ramsey

£275,000

Key Features

  • Detached Double Fronted House
  • Situated in a cul-de-sac location and close to local amenities, schools and shops
  • Lounge, Dining Room, Modern Kitchen
  • Study, walk-in Utility Cupboard
  • 3/4 Bedrooms, Family Bathroom, separate WC
  • uPVC double glazed throughout, Gas Central Heating
  • Off street parking for 2-3 vehicles
  • Secluded rear garden
  • Cash buyers only due to potential structural defects
  • 20 minute drive to Douglas over the mountain
  • No onward chain

Overview

Black Grace Cowley are delighted to offer 79 Greenlands Avenue to the market. This spacious double fronted detached property sits on a generous sized plot and offer excellent accommodation for a growing family. They property does suffer from some structural defects and therefore will only be available to cash purchasers.

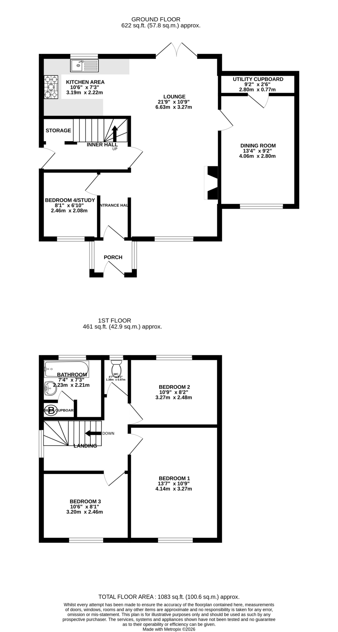
Upon entering the property there is a double glazed entrance porch, which leads through into the hallway and open plan living room which has a double glazed window to the front and a set of French patio doors to the rear. Feature fireplace and an open plan galley style modern kitchen with a double glazed window looking onto the rear garden. Off the lounge there is access into the dining room, with access into the walk in utility cupboard with space and plumbing for both a tumble dryer and washing machine. Also off the lounge is a ground floor study which could be utilised as a 4th bedroom, with a double glazed window to the front aspect. Lastly from the lounge is access into the inner hall which has a door providing access to the outside of the property, a good sized understairs storage cupboard and stairs leading up to the first floor.

The first floor landing is a bright space with a double glazed window offering plenty of natural light. Off the landing are 3 good sized bedrooms, all of which are doubles, bedroom 1 and 3 situated to the front of the house and bedroom 2 to the rear. There is then a separate WC and a family bathroom fitted with a panelled bath, wash hand basin and a large built-in airing cupboard/ boiler cupboard.

To the front of the property there is off street parking for a minimum of 2 vehicles. The front garden is mainly lawned and timber fenced. The rear garden is also fenced to all 3 sides, mainly laid to lawn with a slab patio area directly off the living space.

The property is located just a short walk from Ramsey Grammar School and local primary school’s and just a 10 minute walk from Ramsey Town Centre, local amenities, beach, leisure centre, and Mooragh Park.

No onward chain. CASH BUYERS ONLY.

At a Glance

  • Price
    £275,000
  • Status
    For Sale
  • Bedrooms
    4
  • Reception Rooms
    2
  • Bathrooms
    1
  • Heating
    Gas Central Heating
  • Front Garden
    Yes
  • Rear Garden
    Yes
  • Garage
    No

Contact the Agent

Contact the Agent

Mark Canty

mrc@blackgracecowley.com

(01624) 645555

Key Features

  • Detached Double Fronted House
  • Situated in a cul-de-sac location and close to local amenities, schools and shops
  • Lounge, Dining Room, Modern Kitchen
  • Study, walk-in Utility Cupboard
  • 3/4 Bedrooms, Family Bathroom, separate WC
  • uPVC double glazed throughout, Gas Central Heating
  • Off street parking for 2-3 vehicles
  • Secluded rear garden
  • Cash buyers only due to potential structural defects
  • 20 minute drive to Douglas over the mountain
  • No onward chain

Recently Viewed Properties

79 Greenlands Avenue
Ramsey

£275,000

  • 4
  • 1
  • 2