Ben Vane, 19 First Avenue, Douglas

£739,950

Key Features

  • Exceptionally large, fully modernised semi-detached house
  • Situated in a highly sort after location and within easy commutable distance of Douglas Town Centre
  • Open-plan Kitchen/Diner/Living Room, separate Snug
  • Downstairs WC, Utility Room
  • 4 Bedrooms on the 1st Floor, including the Master Bedroom with En-suite and Family Bathroom
  • 5th Bedroom with Shower Room on the top floor
  • Large south facing rear garden with summer house (power and lighting)
  • Integral Garage, off road parking for 2-3 vehicles
  • Original features such as parquet flooring
  • uPVC double glazed throughout
  • No onward chain

Overview

Black Grace Cowley are delighted to offer 19 First Avenue to the market. This stunning, fully refurbished, 5 bedroom semi-detached home is situated within one of the most sought after roads in Douglas. To the front of the property, there is private off street parking for 2 to 3 vehicles and a raised lawned garden.

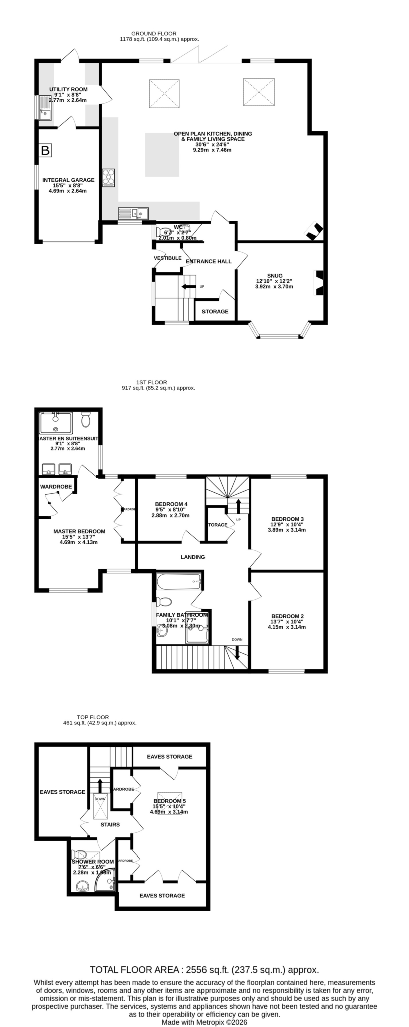
Upon entering the property, there is an entrance vestibule porch, which then leads through to the entrance hall. The entrance hall has the original oak herringbone Parque floors and a winding staircase taking you up to the 1st floor. 
Built in storage in the under stairs. Off the entrance, there is a downstairs cloak room, which has a wash hand basin and WC. To the front there is a snug which has large bay fronted window, log burner and oak herringbone parque floors. Lastly off the entrance hall there is a door into the extended open plan family space, which features a hand built solid wood kitchen, dining and living space. The living area has a log burner to one corner. The kitchen is fitted with a range of wall and base units, integrated appliances and a large breakfast bar island. The dining space is situated to the rear of the room with a set of bi-folding doors that take you out to the garden and Velux skylights offering plenty of natural light to the space. Off the kitchen area, there is a door into the utility room which has space and plumbing for both a washing machine and tumble dryer, contemporary style built-in units, double glazed window to side aspect and a uPVC door giving access out to the garden. There is integral access from the utility room into the single garage where the oil fired central heating boiler can be found. The garage benefits from an electric roller door to the front.

On the 1st floor there is a good sized landing off of which you have a large family bathroom, which has a panelled bath, walk in double shower, wash hand basin and WC, frosted double glazed window offering natural light. There are 4 bedrooms, bedrooms 2, 3 and 4 all of an excellent size, 3 and 4 are situated to the rear of the property overlooking the lawned gardens. In addition to this, there is the master suite, which is a dual aspect bedroom with fitted wardrobes, double glazed windows to both front and back. From the master there is access into the en-suite fitted with a walk in shower cubicle, ‘his’ and ‘hers’ wash hand basins and WC.

Off the 1st floor landing, there are stairs then that take you up to the top floor of the property where bedroom 5 can be found. Bedroom 5 is an attic style, large double bedroom with built-in eaves storage and wardrobes, Velux skylight. Off the top floor landing there is access into the shower room, which services bedroom 5, fitted with a corner shower cubicle, WC and wash hand basin, Velux skylight.

Externally, to the rear of the property, there is a large south facing lawned garden. Predominantly flat with timber fencing to all sides, in the far corner there is a timber summer house with a raised deck area, the summer house has lighting and power. Rear gate providing access to a parking space, allowing access during TT and Manx Grand Prix.

First Avenue is situated close to Nobles Park and the famous TT Grandstand, and just a short distance into Douglas Town Centre.

The property has been renovated to an excellent standard throughout by the current vendors, to truly appreciate the space and the quality of 19 First Avenue, please call Black Grace Cowley to arrange a viewing.

At a Glance

  • Price
    £739,950
  • Status
    Under Offer
  • Bedrooms
    5
  • Reception Rooms
    2
  • Bathrooms
    3
  • En Suite
    1
  • Heating
    Oil fired central heating
  • Front Garden
    Yes
  • Rear Garden
    Yes
  • Garage
    Yes
  • Out Buildings
    Summer House

Contact the Agent

Contact the Agent

Mark Canty

mrc@blackgracecowley.com

(01624) 645555

Key Features

  • Exceptionally large, fully modernised semi-detached house
  • Situated in a highly sort after location and within easy commutable distance of Douglas Town Centre
  • Open-plan Kitchen/Diner/Living Room, separate Snug
  • Downstairs WC, Utility Room
  • 4 Bedrooms on the 1st Floor, including the Master Bedroom with En-suite and Family Bathroom
  • 5th Bedroom with Shower Room on the top floor
  • Large south facing rear garden with summer house (power and lighting)
  • Integral Garage, off road parking for 2-3 vehicles
  • Original features such as parquet flooring
  • uPVC double glazed throughout
  • No onward chain

Recently Viewed Properties

Under Offer
Ben Vane
19 First Avenue, Douglas

£739,950

  • 5
  • 3
  • 2