Grianagh House, Tynwald Mills, St Johns

£1,425,000

Key Features

  • Superior architect-designed contemporary barn conversion
  • Retains original charm and character of traditional stone buildings
  • Peaceful and highly desirable St John’s location
  • Approx. 10 acre setting with stunning panoramic countryside views
  • Paddocks, stables and land
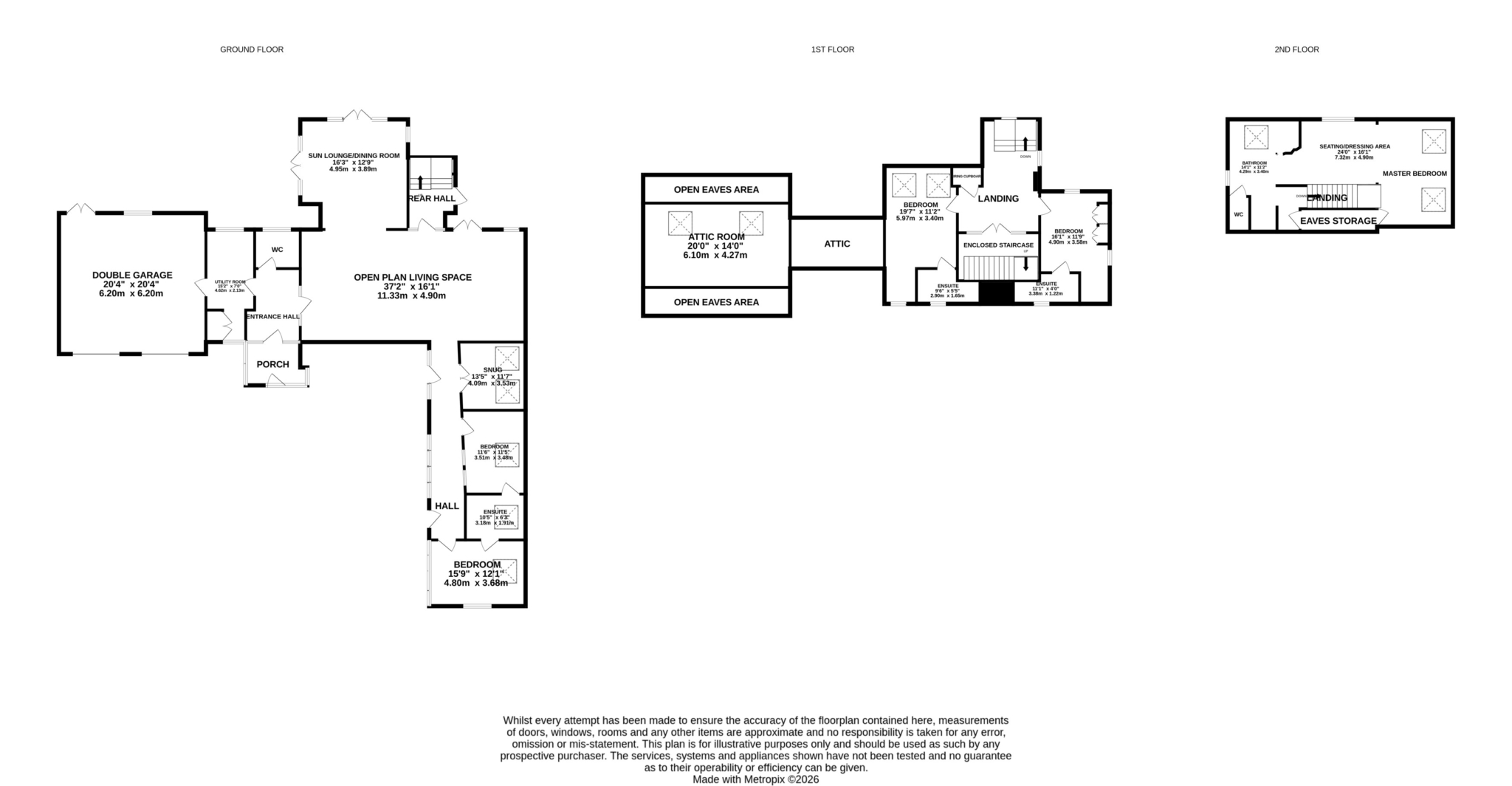
  • Five bedroom accommodation arranged over two floors
  • Principal bedroom suite with dressing area and luxury en suite
  • Two further en suite double bedrooms
  • Additional bedrooms and family bathroom
  • Superb open-plan kitchen / dining / family living space
  • Separate snug / TV room and sun room
  • Feature wood-burning stove
  • Utility room and cloakroom
  • Oil-fired central heating
  • Timber double glazing
  • Integral double garage with storage above
  • Private gated courtyard and extensive parking
  • EV charging point
  • Landscaped gardens and patio entertaining areas

Overview

An exceptional architect-designed contemporary barn conversion, combining striking modern living with the warmth and character of traditional stone buildings. Occupying an peaceful position in the highly desirable St John’s countryside, the property benefits from approximately 10 acres of private land enjoying elevated sweeping 360-degree rural views across St Johns and Peel to the west. Sunsets are spectacular!

Beautifully appointed throughout, the home offers versatile family accommodation, superb entertaining space, landscaped gardens, extensive parking and an integral double garage.

Set within one of the Isle of Man’s most sought-after rural locations, this outstanding barn conversion offers a rare balance of privacy, style and practicality. Carefully designed to retain the charm of the original stone buildings, the property has been transformed into a substantial contemporary home with light-filled interiors and thoughtfully planned family living space.

The ground floor centres around an impressive open-plan kitchen, dining and family room, complete with feature wood-burning stove and direct access to the gardens. A separate snug/TV room and sun room provide further reception space, while a utility room, cloakroom and integral double garage add everyday convenience.

Bedroom accommodation is equally impressive. The principal suite includes fitted wardrobes, dressing area and a luxurious en suite bathroom with feature bath, walk-in shower and skylight. Two further bedrooms benefit from en suite facilities, with two additional bedrooms served by a stylish family bathroom.

Externally, the home is approached through private gates into a generous courtyard with extensive parking and EV charging point. Landscaped gardens and patio areas surround the property, while the adjoining paddocks, stables and outbuildings offer ideal lifestyle or equestrian potential.

A highly individual country home of real quality, offering space, privacy and flexibility in a first-class setting.

At a Glance

  • Price
    £1,425,000
  • Status
    For Sale
  • Bedrooms
    5
  • Reception Rooms
    3
  • Bathrooms
    4
  • En Suite
    4
  • Heating
    Oil fired central heating
  • Front Garden
    Yes
  • Rear Garden
    Yes
  • Garage
    Yes
  • Acreage
    10

Contact the Agent

Contact the Agent

Tim Groves

tim@blackgracecowley.com

01624 645555

Key Features

  • Superior architect-designed contemporary barn conversion
  • Retains original charm and character of traditional stone buildings
  • Peaceful and highly desirable St John’s location
  • Approx. 10 acre setting with stunning panoramic countryside views
  • Paddocks, stables and land
  • Five bedroom accommodation arranged over two floors
  • Principal bedroom suite with dressing area and luxury en suite
  • Two further en suite double bedrooms
  • Additional bedrooms and family bathroom
  • Superb open-plan kitchen / dining / family living space
  • Separate snug / TV room and sun room
  • Feature wood-burning stove
  • Utility room and cloakroom
  • Oil-fired central heating
  • Timber double glazing
  • Integral double garage with storage above
  • Private gated courtyard and extensive parking
  • EV charging point
  • Landscaped gardens and patio entertaining areas

Recently Viewed Properties

Grianagh House
Tynwald Mills, St Johns

£1,425,000

  • 5
  • 4
  • 3