Old Granite House, Bridge Road, Ballasalla

£14,000 per annum excl.

Key Features

TO LET OFFICE SPACE - £14,000 pa excl. NO VAT – Approximately 550 sq ft.
  • NO VAT ON RENT
  • Fabulous single occupancy, office building comprising of a reception entrance hall and four separate offices over two floors.
  • Modern kitchen and separate ladies and gents WC’s.
  • Short distance from Ronaldsway Airport and only 15 minutes from Douglas.
  • Onsite parking for three vehicles included in the rent.
  • Available from 1st April 2026.

Overview

DESCRIPTION
An opportunity to take a new lease on this charming converted office premises located in Ballasalla, a short distance from Ronaldsway Airport and only 15 minutes from Douglas. The premises offer approximately 550 sq ft of office accommodation comprising of four separate offices over two floors, entrance/reception area, communal kitchen and separate ladies and gents WC facilities. There is also a fire precautions system installed and onsite parking for 3 vehicles.

LOCATION
Travelling from Douglas on the New Castletown Road, continue into Ballasalla in the direction of Ronaldsway Airport. At the Whitestone roundabout turn right into Ballasalla and continue past the Malew Commissioners Offices. Opposite the shops turn left onto Bridge Road and the premises can be found on the left hand side.

ACCOMMODATION
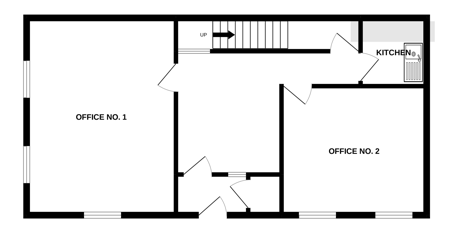
Ground Floor:
• Entrance vestibule & front porch.
• Office 1 – approx. 146 sq ft.
• Office 2 – approx. 114 sq ft.
• Kitchen – approx. 42 sq ft.
• Understairs storage cupboard.
First Floor:
• Office 3 – approx. 139 sq ft.
• Office 4 – L-shaped office approx. 107 sq ft.
• Ladies and Gents WC’s
• Storage cupboard. REPAIRING OBLIGATIONS
The premises are available on internal repairing and insuring terms. Rates, Building Insurance and Waste disposal charges in addition.

RENT REVIEWS
Standard three yearly upward only rent reviews.

DIRECTOR’S GUARANTEE/DEPOSIT
A Director’s guarantee will be required if the lease is being taken in the name of a Limited Company. A 3 month rental deposit will be payable upon signing of the lease and will be returnable upon satisfactory expiry of the lease.

SERVICES
Mains services are installed. Oil fired central heating.

TENURE
Vacant possession on completion of legal formalities.

LEGAL FEES
Each party to pay their own legal fees.

VIEWING
Strictly by appointment through Black Grace Cowley.

At a Glance

  • Price
    £14,000 per annum excl.
  • Status
    Available
  • Tenure
    Leasehold
  • Type
    Office Space
  • Area (sq.ft)
    550

Contact the Agent

Contact the Agent

Sharon Gelling

sharon@blackgracecowley.com

01624 645550

Key Features

TO LET OFFICE SPACE - £14,000 pa excl. NO VAT – Approximately 550 sq ft.
  • NO VAT ON RENT
  • Fabulous single occupancy, office building comprising of a reception entrance hall and four separate offices over two floors.
  • Modern kitchen and separate ladies and gents WC’s.
  • Short distance from Ronaldsway Airport and only 15 minutes from Douglas.
  • Onsite parking for three vehicles included in the rent.
  • Available from 1st April 2026.

Recently Viewed Properties

Old Granite House
Bridge Road

£14,000

  • Tenure
    Leasehold
  • Type
    Office Space
  • Status
    Available
  • Area (sq.ft)
    550 - 550