Pinfold Holiday Cottages, Laxey

£569,950

Key Features

  • Freehold holiday letting development comprising four self-contained cottages
  • Modern 1st-floor one-bedroom apartment, 2/3 bedroom character cottage, one-bedroom duplex cottage, and a detached bungalow
  • Excellent sea views over Laxey from all properties
  • Walking distance to Laxey Beach, village amenities, and coastal attractions
  • Situated on a regular bus route with easy access to Douglas and Ramsey
  • Double garage plus off-street parking for all four properties
  • Private garden to the duplex holiday cottage
  • Oil-fired central heating and uPVC double-glazed windows throughout
  • Well-maintained site, ready for immediate operation as a holiday let investment

Overview

Black Grace Cowley are delighted to offer Pinfold Holiday Cottages in Laxey to the market. This exceptional and highly versatile property presents a rare opportunity to acquire a well-established holiday letting complex with strong income potential, set in an elevated and enviable position overlooking Laxey village and the sea.

Comprising four self-contained holiday units, each with individual access and complete privacy, the development is ideally suited to investors, lifestyle buyers, or those seeking a turnkey holiday business in one of the Isle of Man’s most sought-after coastal locations.

The accommodation includes:

  • A detached holiday cottage/bungalow
  • A duplex holiday cottage with private garden
  • A larger character cottage (Penfold Cottage)
  • A one-bedroom attic-style apartment positioned above a double garage

Together, the units currently offer the potential to generate an impressive annual income of approximately £45,000, making this an attractive investment with scope for further optimisation through holiday or short-term letting.

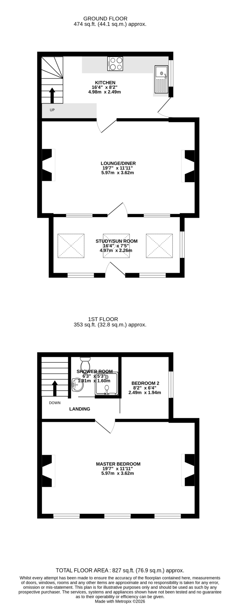
Each property is thoughtfully arranged, offering open-plan living and kitchen spaces, modern bathrooms, and double bedrooms, combining comfort, practicality, and broad guest appeal. All four cottages enjoy sea views.

Pinfold Cottage, the largest of the four, is rich in character, featuring exposed Manx stone, chimney breasts, wooden flooring, and flexible accommodation including a study or potential third bedroom with sea views. The duplex cottage offers a ground-floor en-suite bedroom and an impressive first-floor open-plan living space with French doors opening onto a private garden. The detached bungalow boasts vaulted ceilings, exposed beams, and French doors leading to the courtyard, while the attic apartment provides stylish, modern accommodation with its own external access.

Externally, the property benefits from ample communal off-road parking for multiple vehicles, a rare advantage in Laxey, along with a large double garage providing excellent storage or covered parking. Courtyard seating areas are available for all cottages, enhancing guest enjoyment and outdoor living.

Additional features include oil-fired central heating (served by three separate boilers), uPVC double-glazed windows throughout, and a site that has been well maintained and is ready for immediate operation as a holiday let business.

Ideally located within walking distance of Laxey Beach and bay, the property is close to popular local amenities including The Shore Hotel and village shops. Excellent transport links are available via the No. 3 bus route and the historic Manx Electric Railway, providing easy access to Ramsey, Douglas, and beyond. Douglas town centre is approximately a 10–15 minute drive away.

At a Glance

  • Price
    £569,950
  • Status
    For Sale
  • Bedrooms
    5
  • Reception Rooms
    5
  • Bathrooms
    4
  • Heating
    Oil fired central heating
  • Front Garden
    No
  • Rear Garden
    Yes
  • Garage
    Yes

Contact the Agent

Contact the Agent

Mark Canty

mrc@blackgracecowley.com

01624 645559

Key Features

  • Freehold holiday letting development comprising four self-contained cottages
  • Modern 1st-floor one-bedroom apartment, 2/3 bedroom character cottage, one-bedroom duplex cottage, and a detached bungalow
  • Excellent sea views over Laxey from all properties
  • Walking distance to Laxey Beach, village amenities, and coastal attractions
  • Situated on a regular bus route with easy access to Douglas and Ramsey
  • Double garage plus off-street parking for all four properties
  • Private garden to the duplex holiday cottage
  • Oil-fired central heating and uPVC double-glazed windows throughout
  • Well-maintained site, ready for immediate operation as a holiday let investment

Recently Viewed Properties

Pinfold Holiday Cottages
Laxey

£569,950

  • 5
  • 4
  • 5