Stovell & Stovell Lodge, Tromode Road, Douglas

£2,250,000

Key Features

  • Secluded riverside home set in over 2 acres of south facing gardens beside the River Glass
  • Spacious main house offering over 3,500 sq ft of flexible living space, ideal for family life and entertaining
  • Open-plan Kitchen Diner with Utility Room and access to a private and enclosed courtyard
  • Triple aspect Lounge, Dining Room, Conservatory and Office
  • 5 Bedrooms, 3 Bathrooms
  • Including a ground floor en-suite bedroom and large principal suite with dressing room and luxury bathroom
  • The Lodge- A detached 2 bedroom, 2 bathroom bungalow- ideal for guests, multi-generational living or potential rental income
  • Stable block with paddocks offering equestrian potential
  • Generous driveway providing ample parking
  • Viewing highly recommended

Overview

Black Grace Cowley are delighted to offer Stovell & Stovell Lodge to the market. Stovall is a hidden gem in the heart of Douglas, it’s privacy and unique stature within 2 acres of beautifully landscaped grounds offers stunning privacy and seclusion. The property is access via a gated, winding driveway that leads to an extensive parking area and garaging with The Lodge being the only property to pass which of course, is included in the Stovell Estate and positioned at the entrance of the grounds. The gardens and paddock are walled and fenced with The River Glass providing a natural border between this and other prestigious homes within the immediate vicinity.

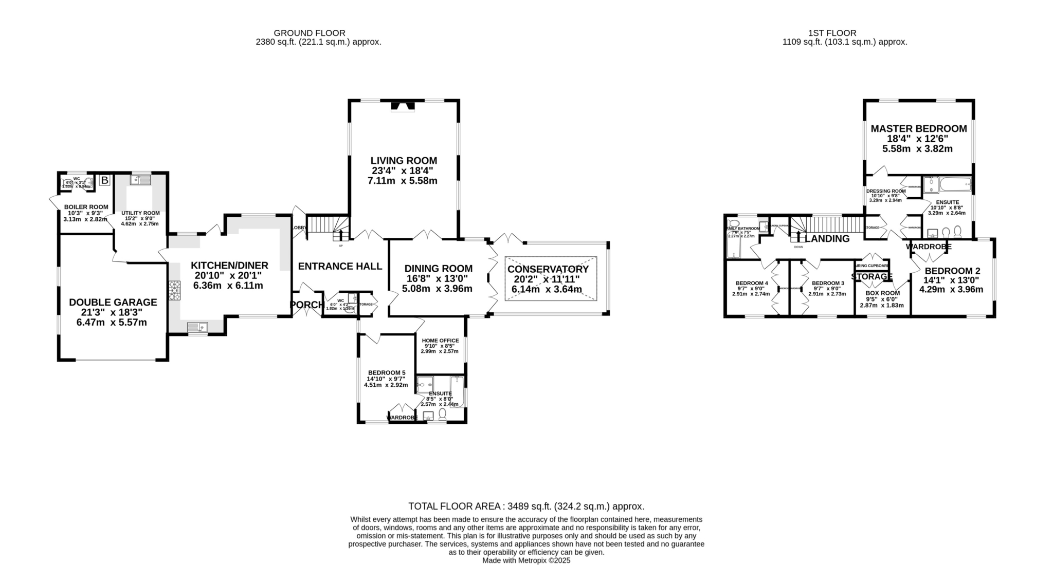
Upon entering the main house, there is a spacious entrance hall which leads into a large open-plan kitchen and dining area with an adjoining utility room and boot room. A bright, triple aspect, living room features a fireplace and large picture windows provide plenty of natural light and views over the grounds. The formal dining room, accessible from the entrance hall and lounge, with two sets of double doors leading into the conservatory. A home office and good-sized dual aspect bedroom, with en-suite bathroom.

On the first floor there is a good size landing with an airing cupboard. A generous master bedroom with dressing room and en-suite. A further 3 bedrooms with built in wardrobes, family bathroom and box room with potential to be converted to an en-suite

Stovell Lodge is a detached bungalow within the grounds and comprises of 2 bedrooms, 2 bathrooms, Kitchen and living room, ideal for multi-generational living, guest accommodation or potential rental income.

Outside, the grounds extend to over 2 acres of mature south facing grounds with mature trees and natural landscaping, the grounds also include a stable block and paddocks, ideal for equestrian enthusiasts. A generous driveway provides ample parking.

Stovell is Oil fired central heating. Stovell Lodge is Gas fired central heating.

At a Glance

  • Price
    £2,250,000
  • Status
    For Sale
  • Bedrooms
    7
  • Reception Rooms
    4
  • Bathrooms
    5
  • En Suite
    4
  • Heating
    Oil Fired Central Heating
  • Front Garden
    Yes
  • Rear Garden
    Yes
  • Garage
    Yes
  • Acreage
    2

Contact the Agent

Contact the Agent

Mark Canty

mrc@blackgracecowley.com

(01624) 645555

Key Features

  • Secluded riverside home set in over 2 acres of south facing gardens beside the River Glass
  • Spacious main house offering over 3,500 sq ft of flexible living space, ideal for family life and entertaining
  • Open-plan Kitchen Diner with Utility Room and access to a private and enclosed courtyard
  • Triple aspect Lounge, Dining Room, Conservatory and Office
  • 5 Bedrooms, 3 Bathrooms
  • Including a ground floor en-suite bedroom and large principal suite with dressing room and luxury bathroom
  • The Lodge- A detached 2 bedroom, 2 bathroom bungalow- ideal for guests, multi-generational living or potential rental income
  • Stable block with paddocks offering equestrian potential
  • Generous driveway providing ample parking
  • Viewing highly recommended

Recently Viewed Properties

Stovell & Stovell Lodge
Tromode Road, Douglas

£2,250,000

  • 7
  • 5
  • 4
Under Offer
1 Ballacottier Meadow
Douglas

£389,950

  • 4
  • 2
  • 2
Apartment 22A, The Courtyard
Malew Street, Castletown

£825 pcm

  • 1
  • 1
  • 1
Under Offer
5 Mona Street
Peel

£309,000

  • 4
  • 1
  • 1
Suite 1, Well Road House
Market Street

£3,500

  • Tenure
    Leasehold
  • Type
    Office Space
  • Status
    Let By
  • Area (sq.ft)
    201 - 201