Wren House, Main Road, Sulby

£765,000

Key Features

  • Newly constructed detached property
  • Situated on the famous TT Course
  • Short drive to Ramsey, Douglas and Peel
  • Open-plan Lounge/Diner with Apex ceilings, Modern Kitchen
  • 4 Bedrooms, 3 Bathrooms (2 en-suites)
  • Utility Room
  • Detached double garage with automated doors to front and rear elevation
  • Finished to an impeccable standard
  • South facing rear garden with countryside views
  • Oil Fired Central Heating- underfloor heating to ground floor
  • Viewing highly recommend to truly appreciate this stunning home

Overview

Black Grace Cowley are delighted to offer Wren House to the market. A newly constructed detached property situated on the famous TT course.

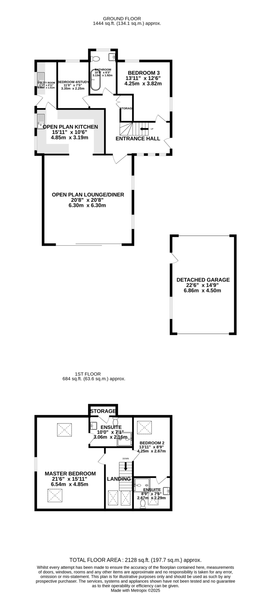
Deceptively spacious accommodation flooded with natural light, extends to approx. 2,130 sq.ft. Upon entering the property there is a spacious entrance hall with stairs to the first floor and a built-in storage cupboard. To the rear of the property there is a spacious open-plan lounge diner with an apex ceiling with four Velux windows, a-framed glazing in the apex and sliding trifold doors. The kitchen is fitted with modern two-tone shaker style wall, base a drawer unit with wrap around worktops and high-quality integrated appliances. A Crittall door from the kitchen provides access into the utility room fitted with matching units and space and plumbing for a washing machine and tumble dryer. Bedrooms 3 & 4 are also situated on the ground floor, to the front of the property, Bedroom 3 is an l-shaped dual aspect double bedroom, Bedroom 4 is a good-sized single bedroom. The family bathroom is fitted with a modern three-piece suite featuring a double ended freestanding bath with mixer tap and shower attachment, wash hand basin with vanity drawers below and a mirrored cabinet above and WC. Fully tiled walls with built in shelf and tiled floors.

On the first floor there is a spacious landing area which could be utilised as a study area/reading area with two Velux windows offering plenty of natural light, Bedroom 1 is a large double bedroom with two Velux windows and an en-suite shower room fitted with a large walk in shower, wash hand basin with vanity storage below and WC, fully tiled walls and floor. Bedroom 2 is a good sized double bedroom with Velux window and an en-suite shower room fitted with a modern three piece suite comprising of a shower, wash hand basin with storage below and WC, Velux window, fully tiled walls and floor.

Externally, to the front of the property there is gravelled off street parking for 3-4 cars. A detached double garage with automatic electric doors to the front and rear. To the rear of the property there is a private south facing garden with distant views of the mountains and surrounding countryside.

The property has been finished to an impeccable standard with feature internal and external lighting. Mixture of triple and double-glazed windows. Under floor (oil fired) heating to the ground floor and designer radiators to the first floor.  Cat 6 cabling installed. Conventional ‘cavity wall’ breeze block construction with Manx stone dressing to front elevation.

Wren House is situated on the famous TT course, and only a short walk to the local pub, Sulby Primary school, and on  a regular bus route for Peel and Ramsey/Douglas. A short drive to Ramsey, Peel and Douglas.

A viewing is highly recommended to truly appreciate the quality and home on offer. Please call Black Grace Cowley on 01624 645555 to arrange a viewing.

At a Glance

  • Price
    £765,000
  • Status
    For Sale
  • Bedrooms
    4
  • Reception Rooms
    2
  • Bathrooms
    3
  • En Suite
    2
  • Heating
    Oil fired central heating
  • Front Garden
    Yes
  • Rear Garden
    Yes
  • Garage
    Yes

Contact the Agent

Contact the Agent

Mark Canty

mrc@blackgracecowley.com

(01624) 645555

Key Features

  • Newly constructed detached property
  • Situated on the famous TT Course
  • Short drive to Ramsey, Douglas and Peel
  • Open-plan Lounge/Diner with Apex ceilings, Modern Kitchen
  • 4 Bedrooms, 3 Bathrooms (2 en-suites)
  • Utility Room
  • Detached double garage with automated doors to front and rear elevation
  • Finished to an impeccable standard
  • South facing rear garden with countryside views
  • Oil Fired Central Heating- underfloor heating to ground floor
  • Viewing highly recommend to truly appreciate this stunning home

Recently Viewed Properties

Wren House
Main Road, Sulby

£765,000

  • 4
  • 3
  • 2