14 Ard Reayrt, Ramsey Road, Laxey

£349,950

Key Features

  • Semi-detached home in Laxey
  • Elevated position with West facing rural views
  • Modern Kitchen, Utility, Downstairs WC
  • Lounge Diner, Conservatory
  • 3 Bedrooms and 2 Bathrooms (1 En-suite)
  • Integral Garage, off street parking for 2 cars
  • Gardens to the front and rear
  • Gas fired central heating, uPVC double glazed throughout
  • Requires cosmetic modernisation
  • No onward chain

Overview

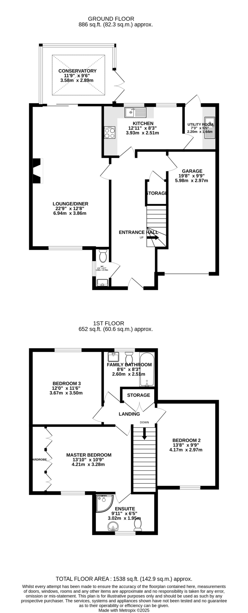
Black Grace Cowley are delighted to offer 14 Ard Reayrt to the market. This substantial semi-detached, modern home sits in an elevated position within the popular village of Laxey. The property is located in a quiet cul-de-sac with lawned gardens to the front, off street parking for two vehicles and a footpath leading to the front door.

Upon entering the house, the entrance hall is spacious with a built in understairs storage cupboard. Off the entrance hall, is a downstairs WC and a door into a large lounge diner with a feature fireplace, uPVC window looking over the front gardens and a set of sliding double glazed doors that lead into the conservatory. The conservatory is triple aspect, with double glazed windows to all sides with a set of French patio doors giving access out to the rear garden. The kitchen is accessed off the entrance hall and fitted with a range of wood effect wall and base units, laminate worktops, integrated dishwasher, oven and hob. Two double glazed windows looking onto the rear garden and a tiled floor that leads through to the utility, where there is further units matching the kitchen, space for undercounter fridge and freezer, wall mounted gas boiler and a double glazed door giving access out to the rear garden. Lastly off the entrance hall is a door into the integral garage, which has an up and over door to the front, ample space for a good sized vehicle and a utility area to the rear.

On the first floor there is a good size landing with double doors into a large airing cupboard. The master bedroom is situated to the front of the house with a range of fitted wardrobes, uPVC double glazed window with stunning views up towards Windy Corner and an en-suite shower room fitted with a corner shower cubicle, wash hand basin and WC. Bedroom 2 and 3 equally both comfortable, double bedrooms, bedroom 2 is situated to the rear of the house and bedroom 3 to the front. in addition to the bedrooms is the modern family bathroom fitted with a double ended panelled bath, wash hand basin and WC.

Externally, to the front of the property is a fenced, good sized lawned garden to the front of the property which is south-west facing and attracts evening sun to the rear. To the rear there is a raised decking area with a mature hedge border, side gate giving access to the front of the property and a gravelled patio area alongside some artificial grass.

The property benefits from gas central heating, uPVC double glazing throughout and is situated within a quiet cul-de-sac just a short walk from Laxey’s local amenities. A 15 minute walk down to the beach, near The Shore and The Shed.

The property does require some cosmetic upgrading, but overall it would make for an excellent family home. Call Black Grace Cowley on 01624 645555 to arrange a viewing.

At a Glance

  • Price
    £349,950
  • Status
    For Sale
  • Bedrooms
    3
  • Reception Rooms
    2
  • Bathrooms
    2
  • En Suite
    1
  • Heating
    Gas fired central heating
  • Front Garden
    Yes
  • Rear Garden
    Yes
  • Garage
    Yes

Contact the Agent

Contact the Agent

Susan Taylorson

susan@blackgracecowley.com

01624 645561

Key Features

  • Semi-detached home in Laxey
  • Elevated position with West facing rural views
  • Modern Kitchen, Utility, Downstairs WC
  • Lounge Diner, Conservatory
  • 3 Bedrooms and 2 Bathrooms (1 En-suite)
  • Integral Garage, off street parking for 2 cars
  • Gardens to the front and rear
  • Gas fired central heating, uPVC double glazed throughout
  • Requires cosmetic modernisation
  • No onward chain

Recently Viewed Properties

14 Ard Reayrt
Ramsey Road, Laxey

£349,950

  • 3
  • 2
  • 2