26 Howe Road, Onchan

£425,000

Key Features

  • Detached Dormer Bungalow
  • Excellent sized corner plot with stunning sea views
  • Within walking distance of Onchan's local amenities
  • Large Lounge Diner, Modern Kitchen
  • 3 Bedrooms, 1 Bathroom, Separate WC
  • Single Garage, Off street parking for 1-2 vehicles
  • Wrap around garden including raised lawn
  • uPVC double glazed, Gas Fired Central Heating, PIV System in place

Overview

Black Grace Cowley are delighted to offer 26 Howe Road to the market. This excellently sized 3 bedroom detached dormer bungalow sits in a prominent corner plot within Howe Road. The property benefits from a wrap around outside space and a footpath leading to the entrance.

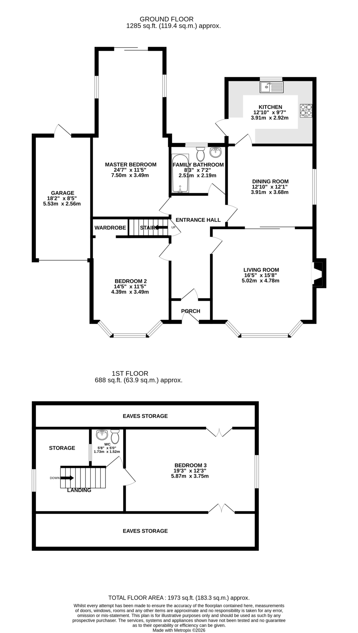
A uPVC double glazed door provides access to the porch, with an internal door then giving access to the spacious hallway. Off the hallway, there is a door into the bay fronted living room. An additional door into the dining space, the lounge and dining room are open via a set of double sliding doors. The living room area has a uPVC double glazed bay window, which takes in sea views towards Douglas Head and a feature log burner . The dining room has a uPVC double glazed window to side aspect and a door leading into the modern fitted kitchen, fitted with a range of white gloss wall and base units with black laminate worktops and integrated appliances. Double glazed window looking onto the properties rear courtyard and a uPVC double glazed door giving access out to the garden. The master bedroom and Bedroom 2 are accessed off the hallway. Bedroom 1 is situated to the rear of the property and incorporates an extension creating a substantial bedroom area with dual aspect double glazed windows and a set of sliding patio doors giving access out to the rear garden. Bedroom 2 is situated to the front with a large double glazed bay window and partial sea views and understairs built in wardrobe. Lastly off the hallway is the family bathroom, which is fitted with a modern suite comprising of  a bath with shower over, wash hand basin and WC, fully tiled walls and floors.

Taking the stairs up to the first floor, there is a large landing area with a double glazed window offering plenty of natural light and a built in alcove storage area. Off the landing is the 1st floor WC, fitted with a wash hand basin and WC. Lastly off the landing is Bedroom 3 which is an excellent sized bedroom which stretched two thirds of the properties floor space on the upper level. uPVC double glazed window with fantastic sea views out towards Douglas Head and two built in eaves storage cupboards.

Externally, there is a single garage to the side with an up and over door to the front and a door to the rear giving access out to the back garden. Power and lighting to the garage. To the front there is off street parking for 1-2 vehicles. There is a raised lawned area which stretches along Howe Road that is fully enclosed, and then a wrap around courtyard/patio space that stretches from the master bedroom across the back of the property and down the side. To the front of the property there is a lawned walled garden which also has sea views.

The property benefits from gas central heating, the current vendors have had a PIV system installed.

At a Glance

  • Price
    £425,000
  • Status
    Under Offer
  • Bedrooms
    3
  • Reception Rooms
    1
  • Bathrooms
    1
  • Heating
    Gas fired central heating
  • Front Garden
    Yes
  • Rear Garden
    Yes
  • Garage
    Yes

Contact the Agent

Contact the Agent

Susan Taylorson

susan@blackgracecowley.com

01624 645561

Key Features

  • Detached Dormer Bungalow
  • Excellent sized corner plot with stunning sea views
  • Within walking distance of Onchan's local amenities
  • Large Lounge Diner, Modern Kitchen
  • 3 Bedrooms, 1 Bathroom, Separate WC
  • Single Garage, Off street parking for 1-2 vehicles
  • Wrap around garden including raised lawn
  • uPVC double glazed, Gas Fired Central Heating, PIV System in place

Recently Viewed Properties

Under Offer
26 Howe Road
Onchan

£425,000

  • 3
  • 1
  • 1