4 Mull View, Kirk Michael

£349,950

Key Features

  • Spacious detached Bungalow in a quiet cul de sac location
  • Walking distance to the primary school, local amenities and bus route
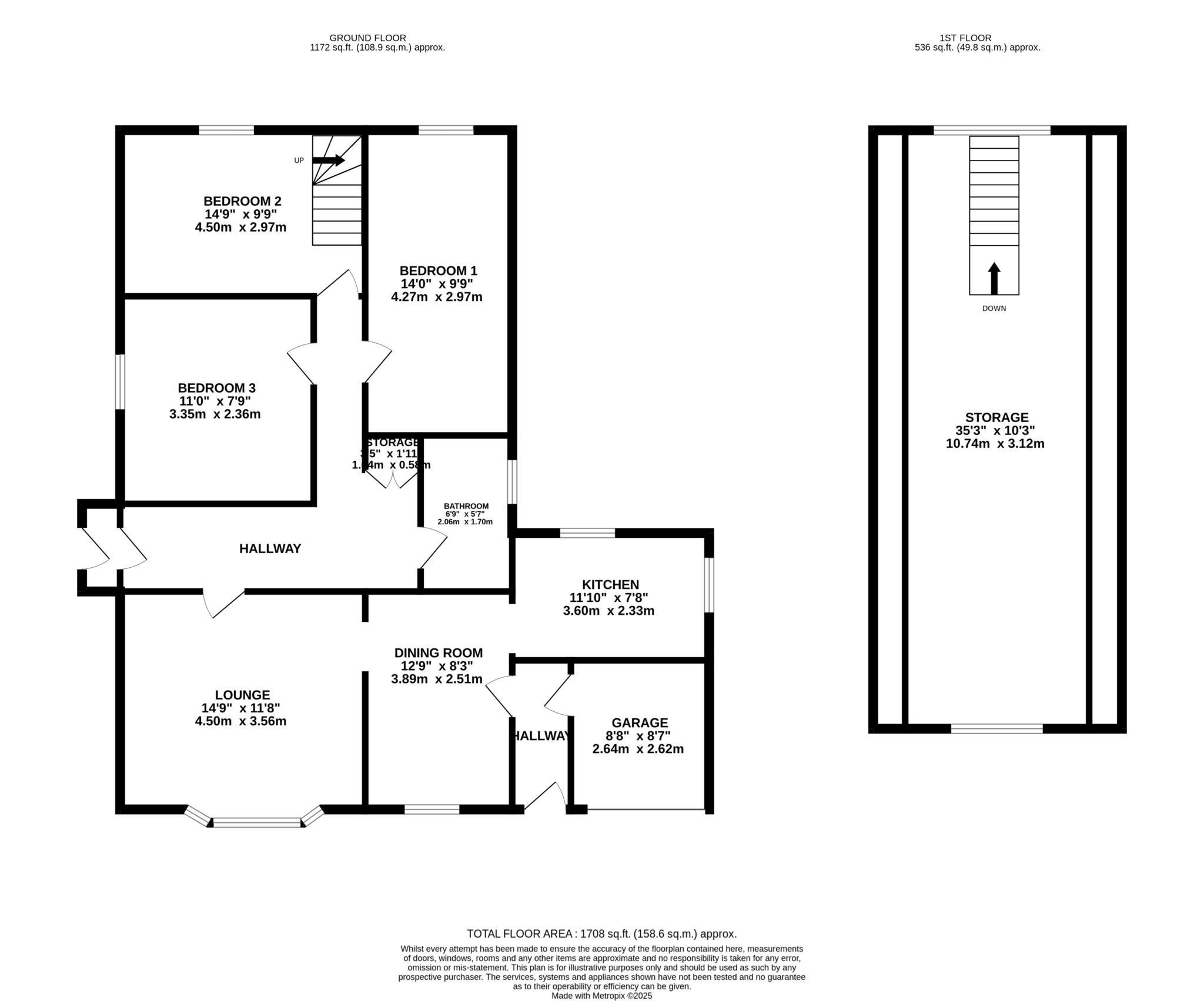
  • Lounge, Dining Room, Kitchen
  • 3 Double Bedrooms, Shower Room
  • Useful Attic Room
  • Half Garage conversion, Off-Road Parking
  • Oil Fired Central Heating
  • No onward chain

Overview

Black Grace Cowley are delighted to present 4 Mull View to the market, a detached Bungalow in the heart of Kirk Michael Village. Situated in a quiet cul-de-sac and just a short walk from local amenities, the Primary School, Pub and an easy commute to Ramsey, Peel, Douglas and the South of the Island.

On entering the property through the uPVC side entrance door into a porch with inner door to the spacious hallway. Flowing off the hallway to the right is a generous and bright dual aspect lounge with large bay window overlooking the front garden. Through an arched opening into the dining room with access to the kitchen, back door and partially converted garage. The hallway provides access to the shower room with double shower, sink and WC and three double bedrooms. Off Bedroom 3 is a staircase leading to a large, full-length attic with central standing height, providing superb potential for conversion, subject to planning with under eaves storage. Outside, the property benefits from a lawned garden to the front with mature shrubs and off-road parking, the partially converted garage provides good storage and houses the oil boiler and laundry appliances. There is a generous, sunny rear garden laid to lawn with mature shrubs.

Oil fired central heating. uPVC double glazed. No onward chain.

At a Glance

  • Price
    £349,950
  • Status
    Sold (STC)
  • Bedrooms
    3
  • Reception Rooms
    2
  • Bathrooms
    1
  • Heating
    Oil Fired Central Heating
  • Front Garden
    Yes
  • Rear Garden
    Yes
  • Garage
    Yes

Contact the Agent

Contact the Agent

Ali Wood

ali@blackgracecowley.com

01624 845696

Key Features

  • Spacious detached Bungalow in a quiet cul de sac location
  • Walking distance to the primary school, local amenities and bus route
  • Lounge, Dining Room, Kitchen
  • 3 Double Bedrooms, Shower Room
  • Useful Attic Room
  • Half Garage conversion, Off-Road Parking
  • Oil Fired Central Heating
  • No onward chain

Recently Viewed Properties

Sold (STC)
4 Mull View
Kirk Michael

£349,950

  • 3
  • 1
  • 2
37 Faaie Ny Cabbal
Kirk Michael

£419,950

  • 4
  • 2
  • 3
Sold (STC)
28 Springfield Rise
Foxdale

£329,500

  • 3
  • 1
  • 1
Cooil Cam
St Marks Road, Ballasalla

£3,850,000

  • 7
  • 6
  • 5
Sold (STC)
2 Sunhill Cottages
Croit E Quill Road, Laxey

£429,950

  • 3
  • 2
  • 3