Cooyrt Bane, Ballafayle, Ramsey

£795,000

Key Features

  • Part constructed building plot within Dreemskerry, Maughold
  • 5 Bed, 5 Bath, 4 Reception Rooms
  • Boot Room/Shower Room
  • Open-plan Kitchen Diner, Utility Room
  • Double Garage, off street parking for several vehicles
  • Panoramic sea views
  • Gated driveway
  • Landscape potential for courtyard, deck and gardens
  • Modern contemporary design, partly constructed and to be completed by the new owner
  • Planning Ref: 20/01209/B
 

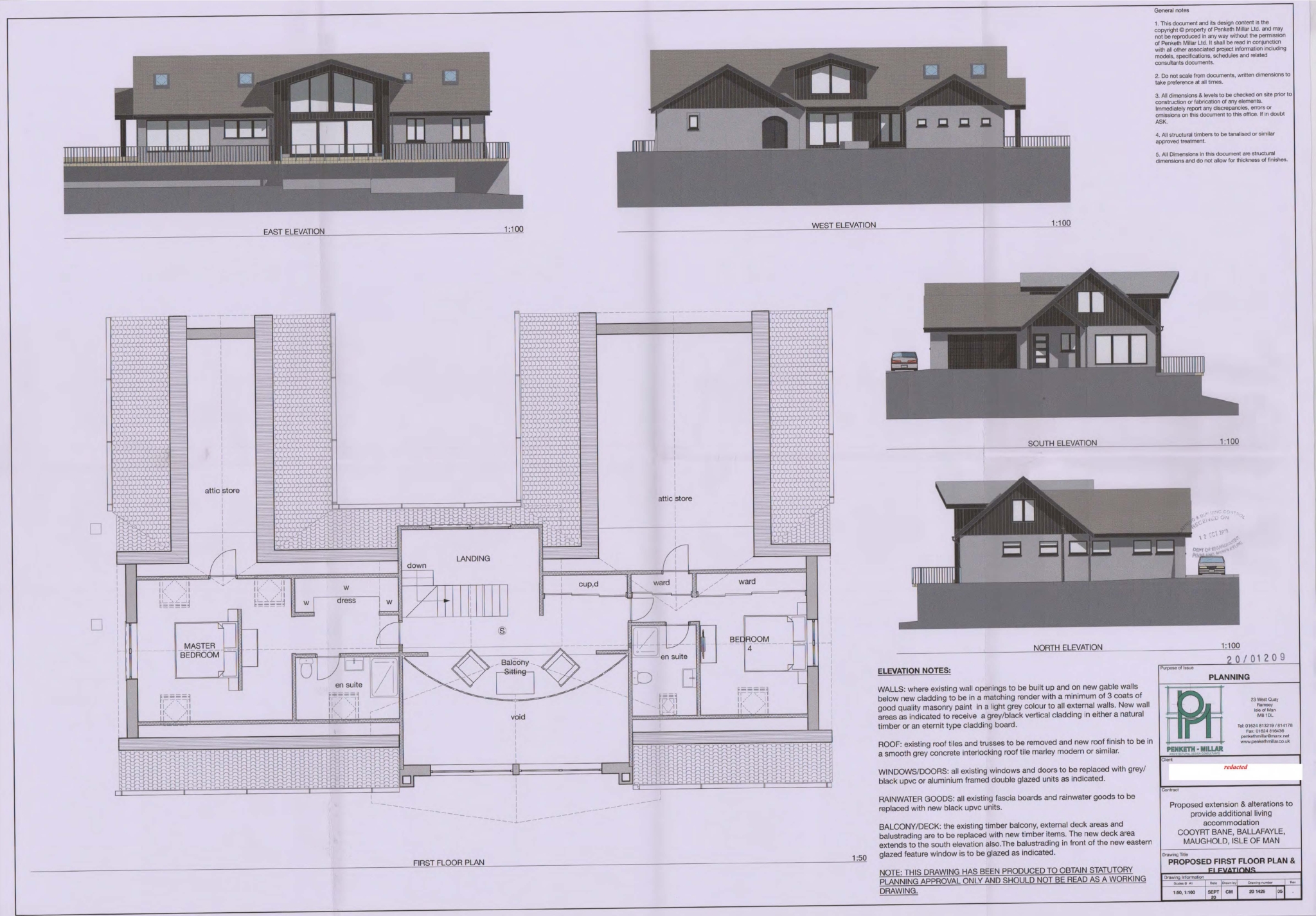
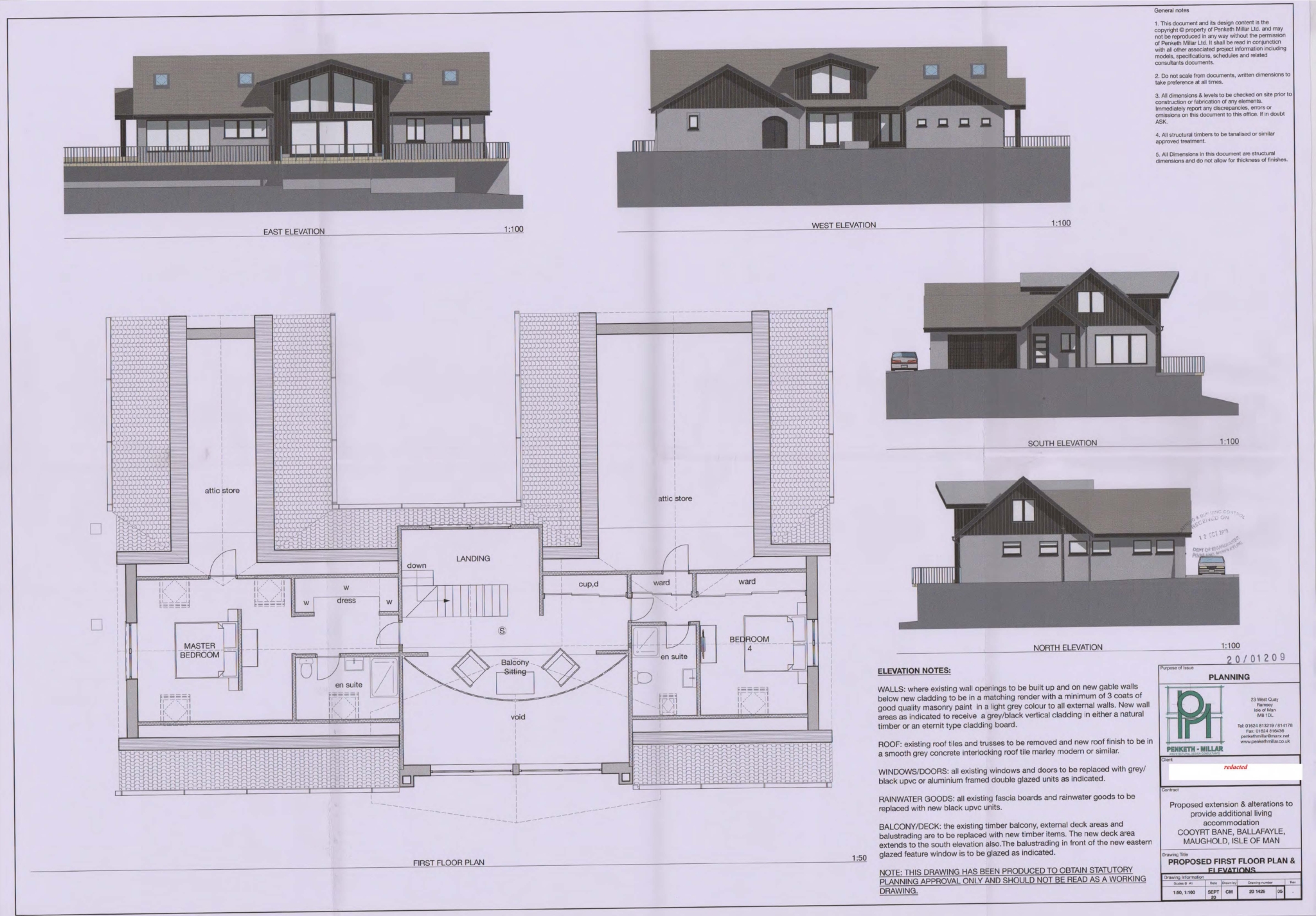
Overview

Black Grace Cowley are pleased to offer this on going construction site and building plot. The property would suit somebody looking to complete a project and put their own stamp on a new build home on the north east coast of the island. Panoramic sea views and views across to Maughold and surrounding landscapes.

Full planning permission for a modern eco-friendly home extending to approx. 4,500 sq.ft. Detached house in an elevated position in Dreemskerry, Maughold. Sea facing Lounge, Kitchen Diner, Sunroom, Utility Room, Home Office, Boot Room/WC (provisions for an additional Bathroom), Integral Garage, 5 Bedroom, 5 Bathroom. Upper level occupies the Master Bedroom with an en-suite and dressing area and Bedroom 2, large full height apex sitting area on the first floor with panoramic sea views. Outside space has courtyard gardens, decking, raised terraces and off street parking for several vehicles. Property sat down from Dreemskerry Road, with provision for a gated entrance leading to the winding driveway. Building work has commenced, but not completed.

For more details, please call Black Grace Cowley on 01624 645555

 

At a Glance

  • Price
    £795,000
  • Status
    Sold (STC)
  • Bedrooms
    5
  • Reception Rooms
    4
  • Bathrooms
    5
  • En Suite
    4
  • Front Garden
    Yes
  • Rear Garden
    Yes
  • Garage
    No

Contact the Agent

Contact the Agent

Mark Canty

mrc@blackgracecowley.com

01624 645559

Key Features

  • Part constructed building plot within Dreemskerry, Maughold
  • 5 Bed, 5 Bath, 4 Reception Rooms
  • Boot Room/Shower Room
  • Open-plan Kitchen Diner, Utility Room
  • Double Garage, off street parking for several vehicles
  • Panoramic sea views
  • Gated driveway
  • Landscape potential for courtyard, deck and gardens
  • Modern contemporary design, partly constructed and to be completed by the new owner
  • Planning Ref: 20/01209/B
 

Recently Viewed Properties

Sold (STC)
Cooyrt Bane
Ballafayle, Ramsey

£795,000

  • 5
  • 5
  • 4