Flat 1, 12 Belmont Terrace, Douglas

£88,000

Key Features

  • Ground floor converted apartment
  • Situated in Douglas Town Centre and within walking distance to local amenities and transport links
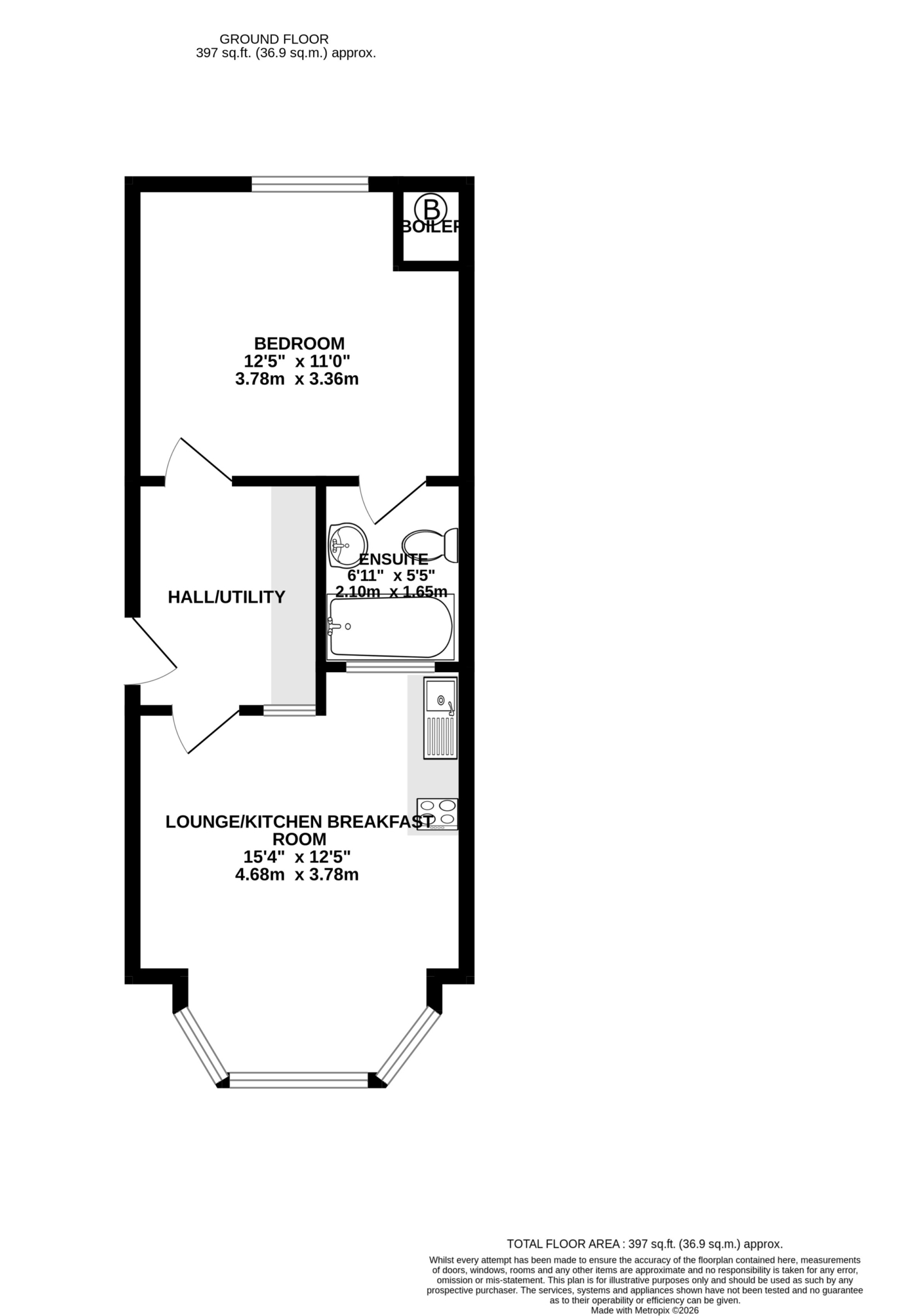
  • Bay-fronted open plan lounge, kitchen & breakfast area
  • Utility hallway with storage and plumbing for washing machine
  • 1 Bedroom, En-suite Bathroom
  • uPVC double glazing throughout
  • Intercom entry system
  • Active management company in place
  • Ideal investment opportunity
  • No onward chain
Single Occupancy Only

Overview

Black Grace Cowley are delighted to present Apartment 1, 12 Belmont Terrace to the market. This bay-fronted, ground floor converted apartment is ideally located in the heart of Douglas Town Centre, within easy walking distance of a wide range of local amenities and transport links.

Accessed via a communal entrance hall, the apartment is positioned to the right-hand side. Internally, the property opens into a useful utility hallway fitted with base units, laminate worktops and space and plumbing for a washing machine. An intercom entry system is also located here.

The accommodation includes a bright, bay-fronted open plan lounge, kitchen and breakfast area, featuring a full-height uPVC double glazed bay window. The contemporary kitchen is fitted with grey wall and base units, a white tiled floor, integrated two-ring ceramic hob, electric oven, and stainless steel sink with drainer.

To the rear of the property there is a well-proportioned double bedroom with a uPVC double glazed window and built-in boiler cupboard. The bedroom benefits from an en-suite bathroom fitted with a panelled bath, wash hand basin, WC and a high-level glazed window allowing for natural light.

The property benefits from an active management company and is offered for sale with no onward chain, making it an excellent investment or first-time purchase.

Management Fees: £1,500 per annum. Remainder of a 999 year lease (commenced in 2005).

At a Glance

  • Price
    £88,000
  • Status
    For Sale
  • Bedrooms
    1
  • Reception Rooms
    1
  • Bathrooms
    1
  • Front Garden
    No
  • Rear Garden
    No
  • Garage
    No

Contact the Agent

Contact the Agent

Mark Canty

hello@blackgracecowley.com

01624 645555

Key Features

  • Ground floor converted apartment
  • Situated in Douglas Town Centre and within walking distance to local amenities and transport links
  • Bay-fronted open plan lounge, kitchen & breakfast area
  • Utility hallway with storage and plumbing for washing machine
  • 1 Bedroom, En-suite Bathroom
  • uPVC double glazing throughout
  • Intercom entry system
  • Active management company in place
  • Ideal investment opportunity
  • No onward chain
Single Occupancy Only

Recently Viewed Properties

Flat 1
12 Belmont Terrace, Douglas

£88,000

  • 1
  • 1
  • 1