Oakhill Chapel, Port Soderick

£495,000

Key Features

  • Detached converted Chapel within Port Soderick extending to approx. 1,500 sq.ft
  • Stunning location within a 5 minute drive of Douglas Town centre and 10 minutes from Castletown
  • Exceptional example of a period home
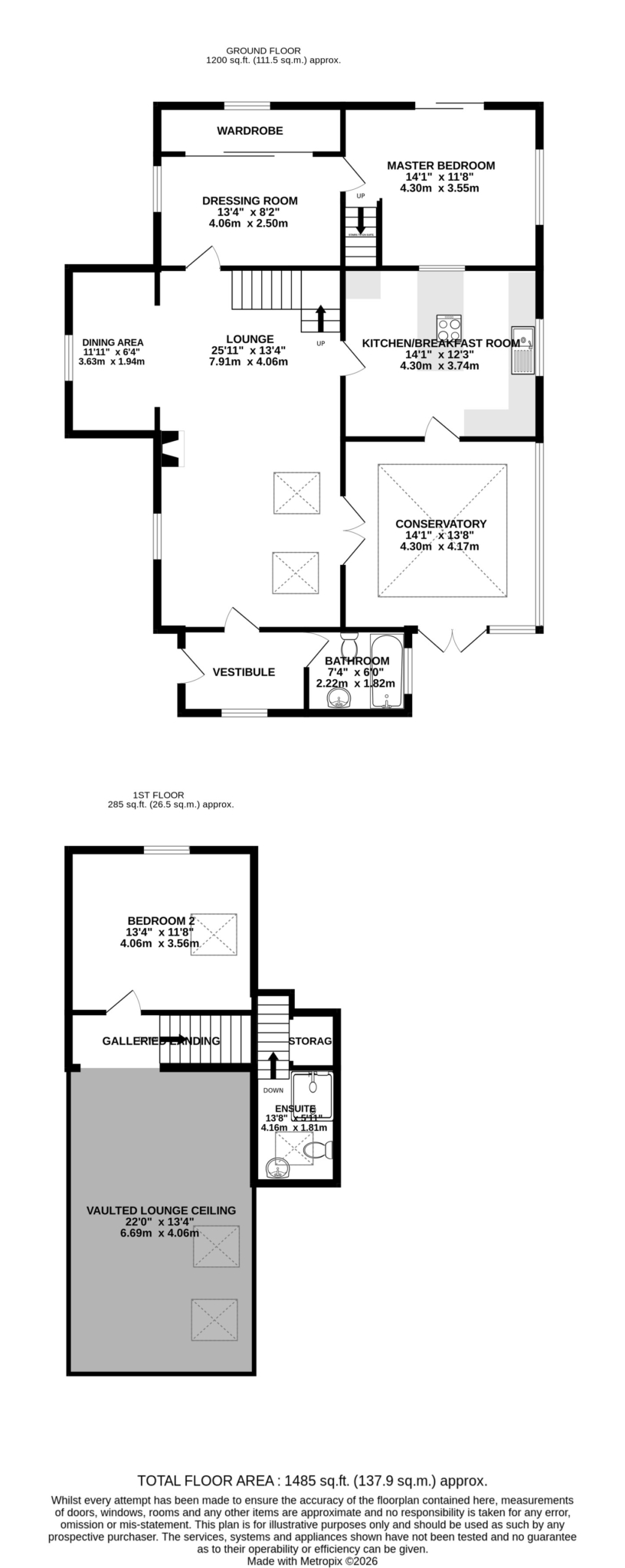
  • Large Entrance Vestibule
  • Large Lounge/Diner with double height vaulted ceilings
  • Modern Kitchen, Spacious Conservatory
  • Master Bedroom with walk-through Dressing Room and En-suite Shower Room
  • 1st floor Bedroom 2 off the galleried landing, Ground Floor Bathroom
  • South facing gardens with rural views
  • Gated off street parking for 3+ vehicles
  • Original features throughout
  • No onward chain

Overview

Black Grace Cowley are delighted to offer Oakhill Chapel to the market. This unique converted chapel makes for a stunning 1,500 sq.ft home situated within one of the island’s most sought after locations.

Upon entering the property, there is a gated driveway to the front which has ample space for 3 plus vehicles from which there are steps down to the entrance. The entrance is via a solid wood arched oak door into a spacious vestibule with tiled floors and side window offering plenty of natural light. Off the vestibule, is the ground floor family bathroom suite, which has been finished in keeping with the character of the chapel. From the vestibule a door leads into a large open lounge and dining area. This is a feature room of the chapel with double height vaulted ceilings, original exposed timber beams, two large windows offering plenty of natural lights in addition to the original windows and a set of double glazed doors that lead into the conservatory. The lounge diner has a feature log burner, solid floors and a large recess offering plenty of space for the dining table and chairs. A staircase leads up to a galleried landing, which takes you to bedroom 2. Off the lounge diner, is the conservatory, which has dual aspect uPVC double glazed windows and a set of French patio doors that lead out to the south facing garden. From the conservatory, there is access into the kitchen, which can also be accessed from the living space. The kitchen also has double ceiling heights with stained glass windows and an internal stained glass window offering additional natural light. The kitchen is fitted with a range of wall and base units, large breakfast bar, integrated appliances and ample built in storage.

The master suite is accessed off the lounge via a large walk-through dressing room with a bank of fitted wardrobes to one wall and ample space for a dressing table. An opening into the master bedroom which has dual aspect light via a double glazed window to rear aspect and a set of sliding patio doors that give access out to the rear garden. Off the master bedroom, a set stairs lead up to the en-suite, halfway up the stairs there is built-in storage to one side. The en-suite is fitted with a walk-in shower cubicle, WC and wash hand basin. From the galleried landing off the living space is access into Bedroom 2 which is an excellent sized double bedroom with exposed beans and original features. A side window and an arched window offering plenty of natural light.

Externally, the property is surrounded by it’s own grounds, with paved footpaths to the side and front of the property. 
The gardens at the back are south facing with stunning rural views, and a mixture of lawn and mature shrub borders. The opposite side of the driveway there is a timber shed and a triangular copse of wooded woodland.

The chapel features an array of period features including Arched windows, archways and exposed beams. It’s a stunning example of a converted chapel in one of the most sort after locations on the Isle of Man.

To truly appreciate this unique home, please call Black Grace Cowley to organise a viewing on 01624 645555

At a Glance

  • Price
    £495,000
  • Status
    For Sale
  • Bedrooms
    2
  • Reception Rooms
    2
  • Bathrooms
    2
  • Heating
    Gas fired central heating
  • Front Garden
    Yes
  • Rear Garden
    Yes
  • Garage
    No

Contact the Agent

Contact the Agent

Mark Canty

mrc@blackgracecowley.com

(01624) 645555

Key Features

  • Detached converted Chapel within Port Soderick extending to approx. 1,500 sq.ft
  • Stunning location within a 5 minute drive of Douglas Town centre and 10 minutes from Castletown
  • Exceptional example of a period home
  • Large Entrance Vestibule
  • Large Lounge/Diner with double height vaulted ceilings
  • Modern Kitchen, Spacious Conservatory
  • Master Bedroom with walk-through Dressing Room and En-suite Shower Room
  • 1st floor Bedroom 2 off the galleried landing, Ground Floor Bathroom
  • South facing gardens with rural views
  • Gated off street parking for 3+ vehicles
  • Original features throughout
  • No onward chain

Recently Viewed Properties

Oakhill Chapel
Port Soderick

£495,000

  • 2
  • 2
  • 2
Rosshay, Main Road
St Johns

£395,000

  • 3
  • 2
  • 2
Shearwaters
Trollaby Lane, Union Mills

£1,350,000

  • 5
  • 3
  • 3