Santon Heights, Orrisdale Road, Ballasalla

£4,750,000

Key Features

  • Well-presented detached home occupying a private plot
  • Extending to approx. 11,000 sq.ft
  • The principal accommodation features a modern Breakfast Kitchen and 5 Reception Rooms
  • 5 En-suite Bedrooms (2 with Dressing Rooms)
  • Entertainment Suite featuring a Pool, Gym, Snooker Room/Bar
  • Wine Room
  • Guest Accommodation extending to over 1,000 sq.ft (Open-plan Kitchen/Diner/Lounge, 2 Bedrooms, 2 Bathrooms)
  • Approx. 7 Acres of mature landscaped grounds
  • Triple Garage and off-road parking for several cars

Overview

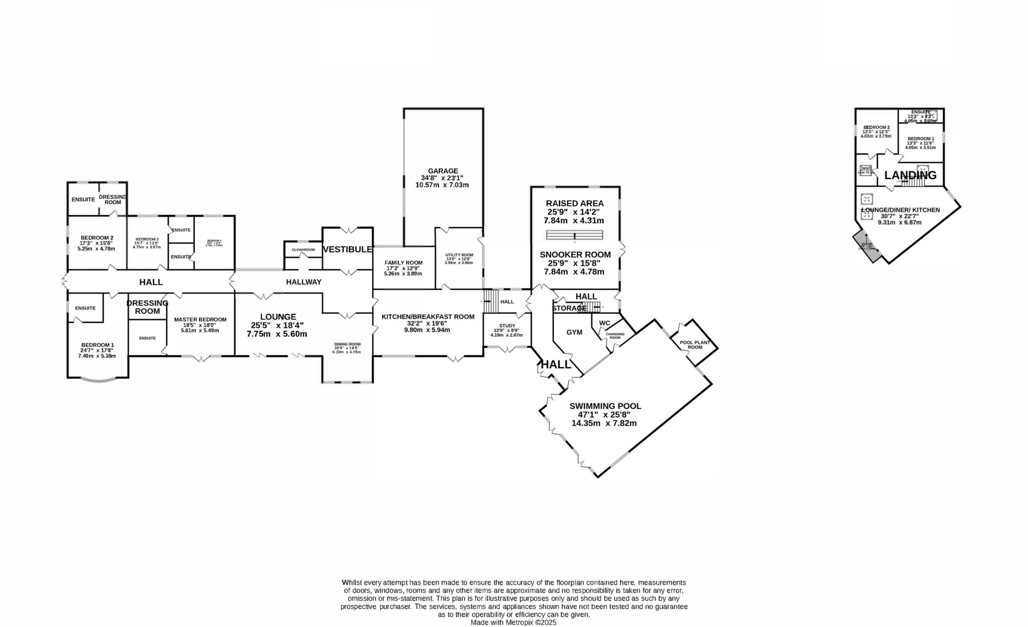
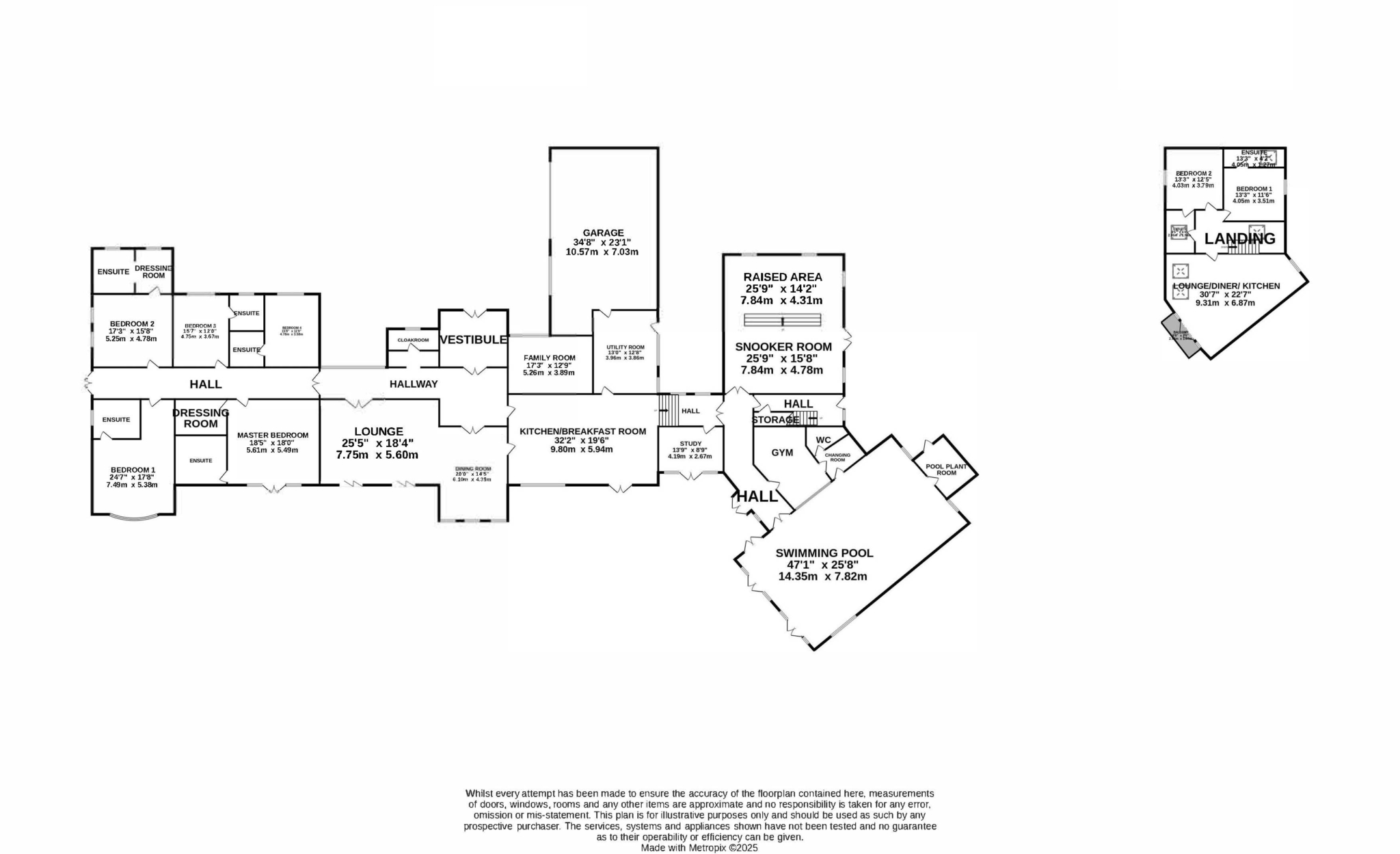
Black Grace Cowley are delighted to offer Santon Heights to the market, a beautiful, detached country home extending to approx. 11,000 sq.ft. Occupying a generous plot in the south of the island, extending to approx. 7 acres of landscaped grounds.

The principal accommodation extends to approx. 8,400 sq ft, featuring a modern breakfast kitchen, lounge and formal dining room, family room, study and utility room. An entertainment suite comprises of a heated swimming pool and gym, plus a snooker room with raised entertainment area featuring a bespoke bar. There are five generous en-suite bedrooms which includes a spacious master bedroom suite with dressing room and en-suite.

In addition to the main house, there is a self-contained annex/guest accommodation which can also be accessed via the main house. There is a spacious open plan kitchen/diner/lounge with Velux windows and balcony which enjoys stunning countryside views. Two generous bedrooms both with en-suites.

At a Glance

  • Price
    £4,750,000
  • Status
    For Sale
  • Bedrooms
    7
  • Reception Rooms
    5
  • Bathrooms
    7
  • En Suite
    7
  • Heating
    Oil fired central heating
  • Front Garden
    Yes
  • Rear Garden
    Yes
  • Garage
    Yes
  • Acreage
    7

Contact the Agent

Contact the Agent

Tim Groves

tim@blackgracecowley.com

01624 645555

Key Features

  • Well-presented detached home occupying a private plot
  • Extending to approx. 11,000 sq.ft
  • The principal accommodation features a modern Breakfast Kitchen and 5 Reception Rooms
  • 5 En-suite Bedrooms (2 with Dressing Rooms)
  • Entertainment Suite featuring a Pool, Gym, Snooker Room/Bar
  • Wine Room
  • Guest Accommodation extending to over 1,000 sq.ft (Open-plan Kitchen/Diner/Lounge, 2 Bedrooms, 2 Bathrooms)
  • Approx. 7 Acres of mature landscaped grounds
  • Triple Garage and off-road parking for several cars

Recently Viewed Properties

Santon Heights
Orrisdale Road, Ballasalla

£4,750,000

  • 7
  • 7
  • 5
Kingsley Manor
Ballanard Woods, Douglas

£3,595,000

  • 5
  • 5
  • 4
Glentramman Mansion House
Ramsey

£1,325,000

  • 7
  • 3
  • 4
Sold (STC)
48 Derby Square
Douglas

£779,950

  • 4
  • 4
  • 2
Cooyrt Bane
Ballafayle, Ramsey

£795,000

  • 5
  • 5
  • 4