Residential Development Plot, Greeba Grove, Glen Vine

£165,000

Key Features

  • Building plot situated in a highly sought after area
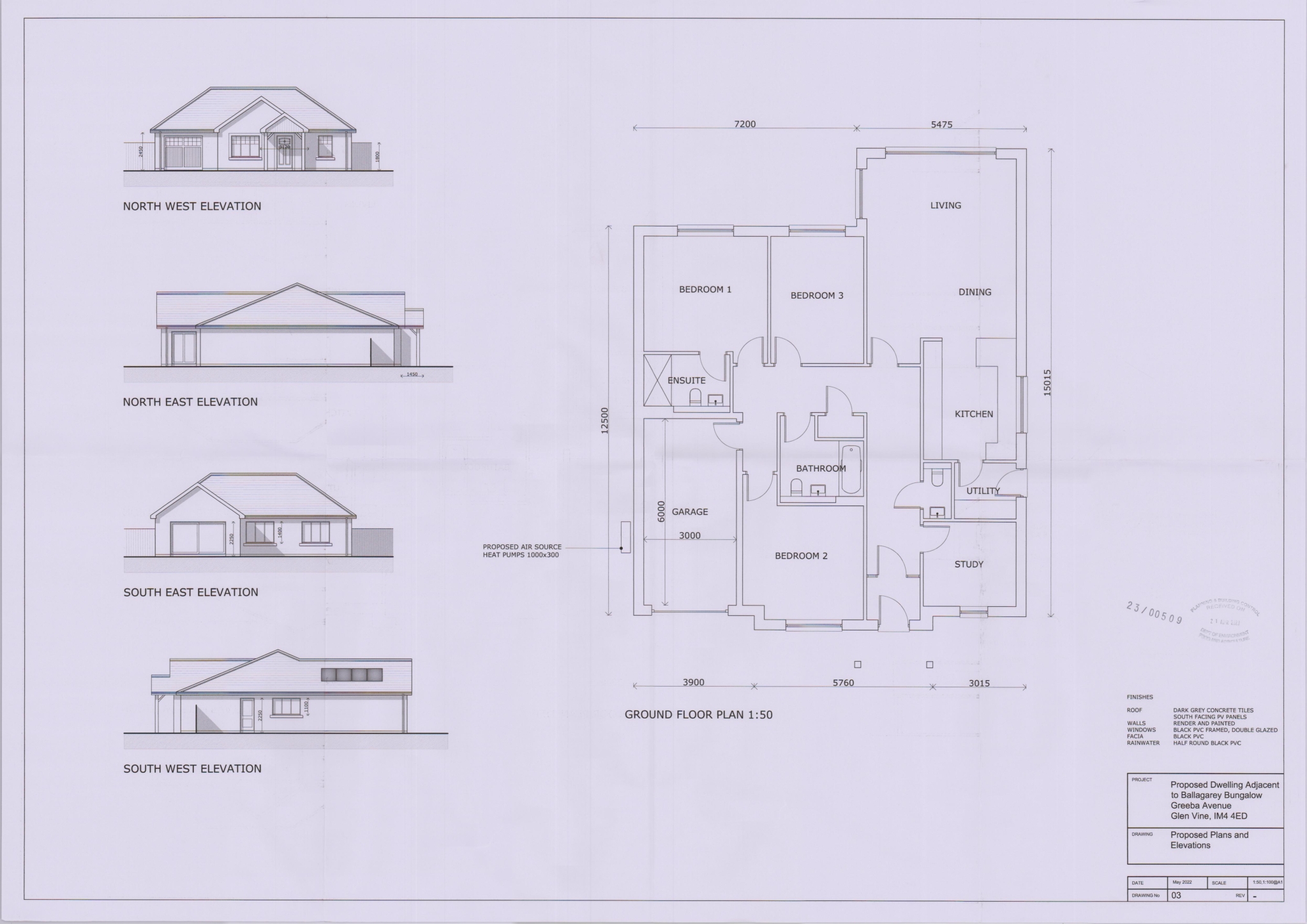
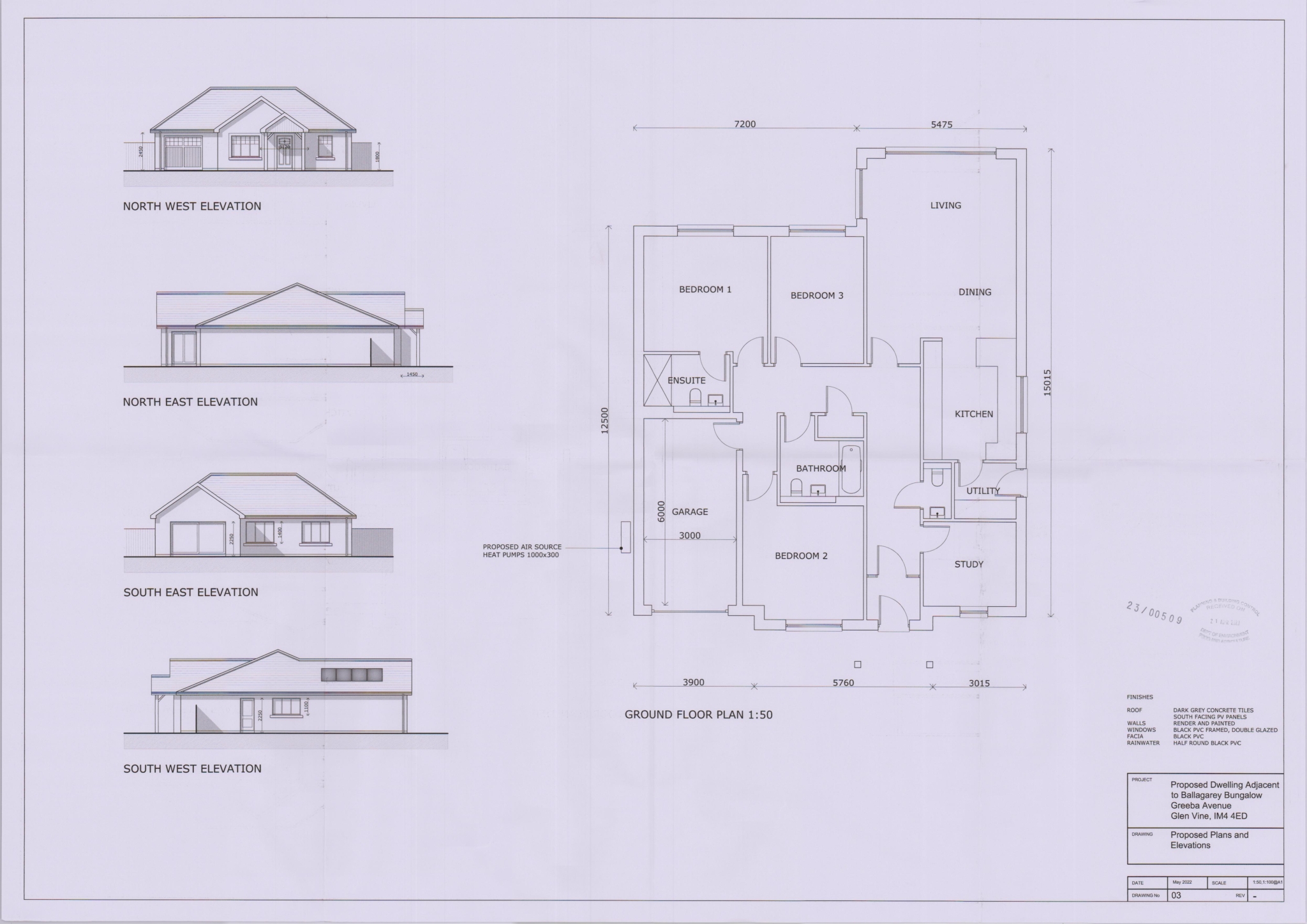
  • Full planning approval for a detached bungalow
  • 3 Bedrooms, 2 Bathrooms
  • Open-plan Kitchen/Diner/Lounge, Utility Room and Study
  • Garage
  • Planning Ref: 23/00509/B

Overview

Black Grace Cowley are delighted to offer this residential development opportunity to the market. The plot is situated in a highly sought after residential estate in Glen Vine, off Greeba Grove.

The planning permission in place accommodates a contemporary detached bungalow that consists of three bedrooms and two bathrooms, an open-plan kitchen/diner/lounge, utility room, study and garage.

Occupying a good-sized plot with scope for a private garden to the rea and off road parking to the front.

The plot is situated in a popular residential estate in Glen Vine, within walking distance of Marown Primary School, The Old Railway Lines and on a regular bus route. Only a 10 minute drive to Douglas Town Centre and 15 minutes from Peel.

At a Glance

  • Price
    £165,000
  • Status
    Sold (STC)
  • Bedrooms
    3
  • Reception Rooms
    2
  • Bathrooms
    2
  • En Suite
    1
  • Front Garden
    Yes
  • Rear Garden
    Yes
  • Garage
    Yes

Contact the Agent

Contact the Agent

Tim Groves

hello@blackgracecowley.com

01624 645555

Key Features

  • Building plot situated in a highly sought after area
  • Full planning approval for a detached bungalow
  • 3 Bedrooms, 2 Bathrooms
  • Open-plan Kitchen/Diner/Lounge, Utility Room and Study
  • Garage
  • Planning Ref: 23/00509/B

Recently Viewed Properties

Sold (STC)
Residential Development Plot
Greeba Grove, Glen Vine

£165,000

  • 3
  • 2
  • 2