The Old School House, Sulby

£520,000

Key Features

  • Opportunity to complete the refurbishment of a registered former School House in Sulby
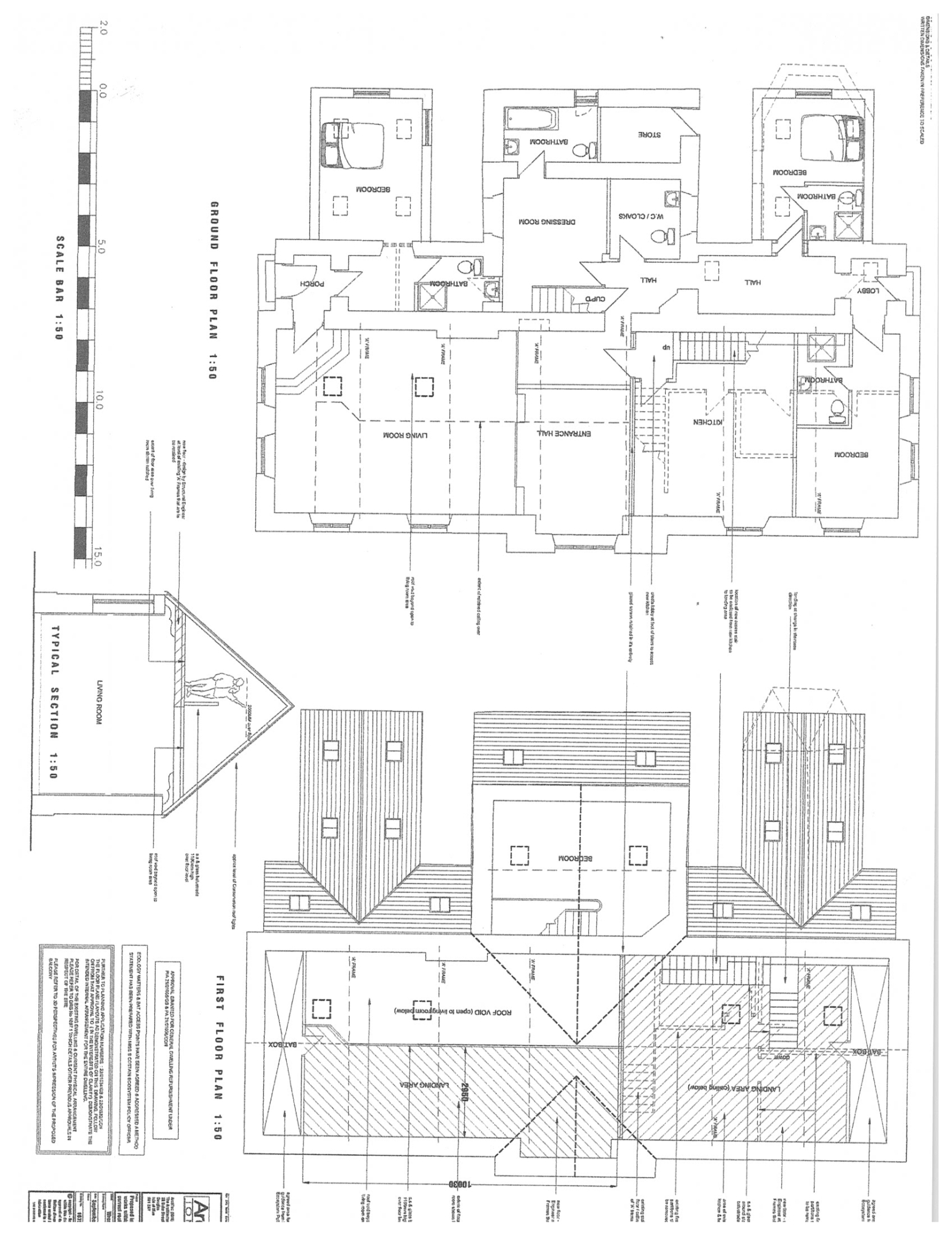
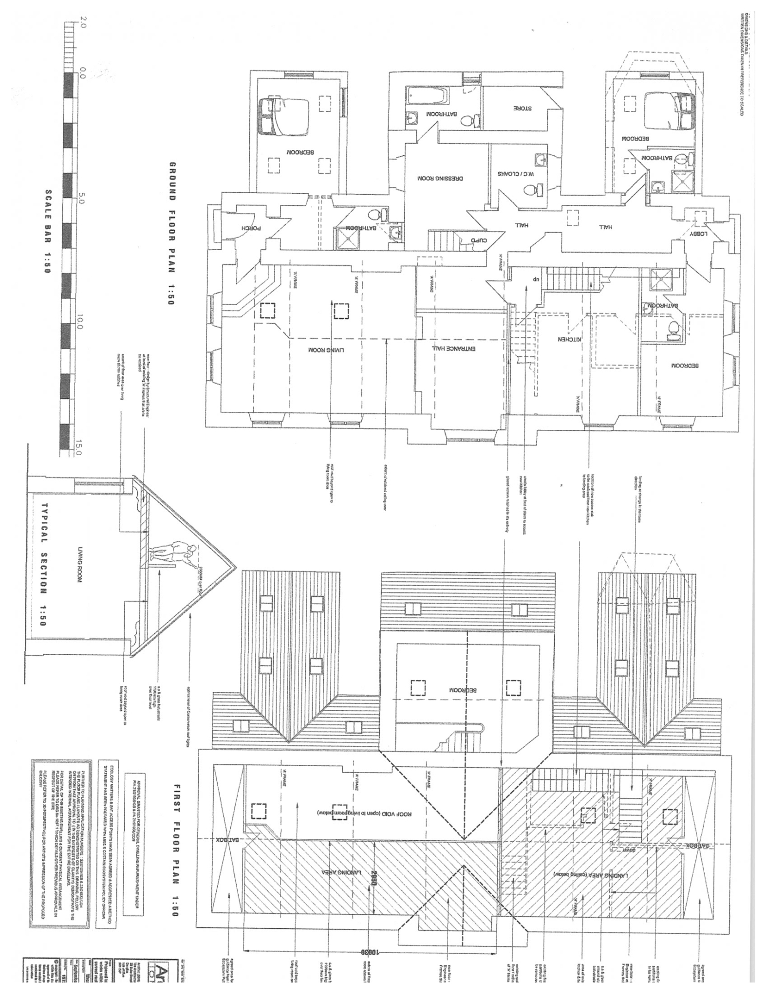
  • Extending to approximately 4,700 sq.ft.
  • 4 Bedrooms, 4 Bathrooms, including a duplex Master Suite, Galleried Landing and Study Area
  • Entrance Hall, Living Room, Modern Kitchen Diner
  • Landscaped Courtyard and Garden
  • 2 Car Oak frame Carport to the rear
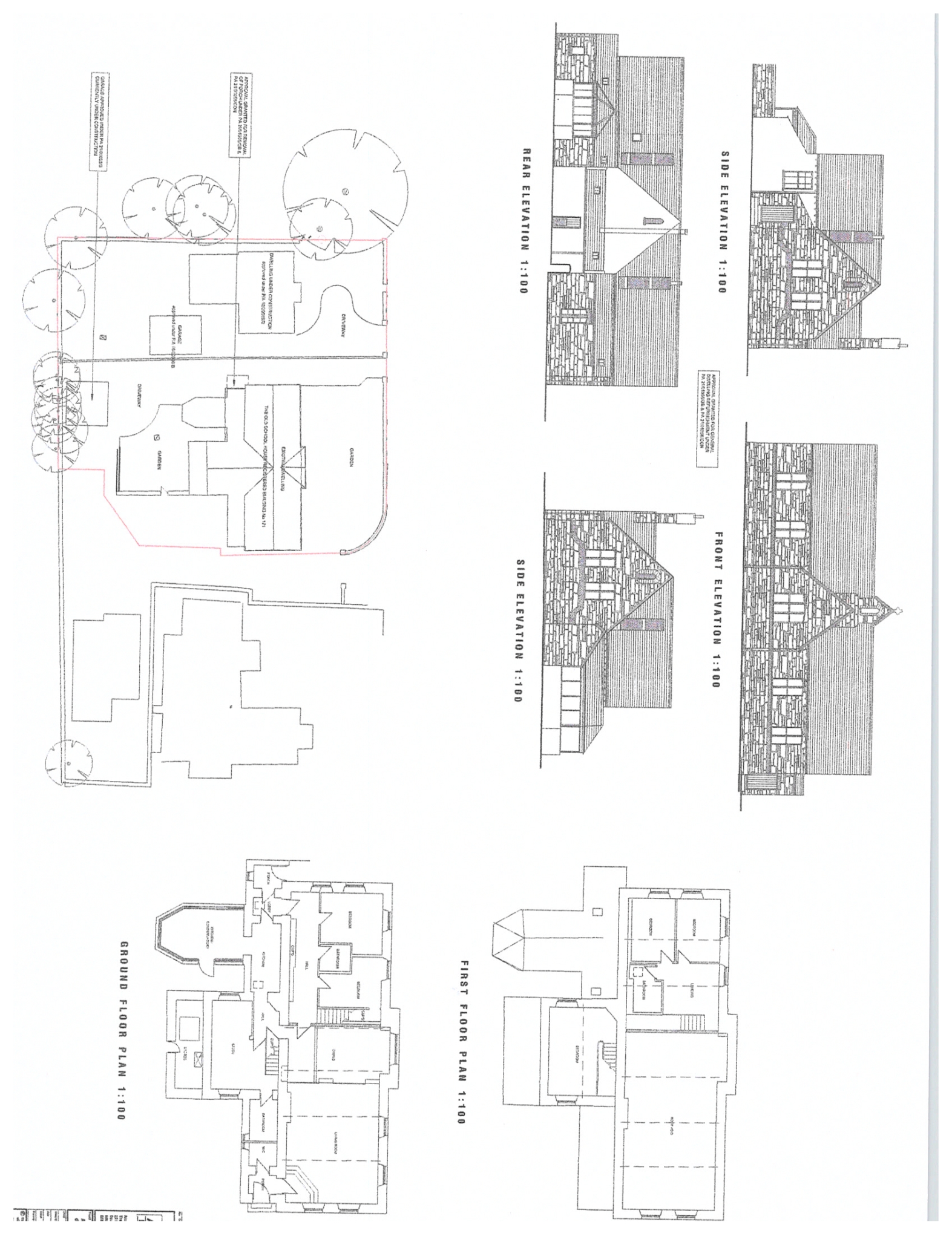
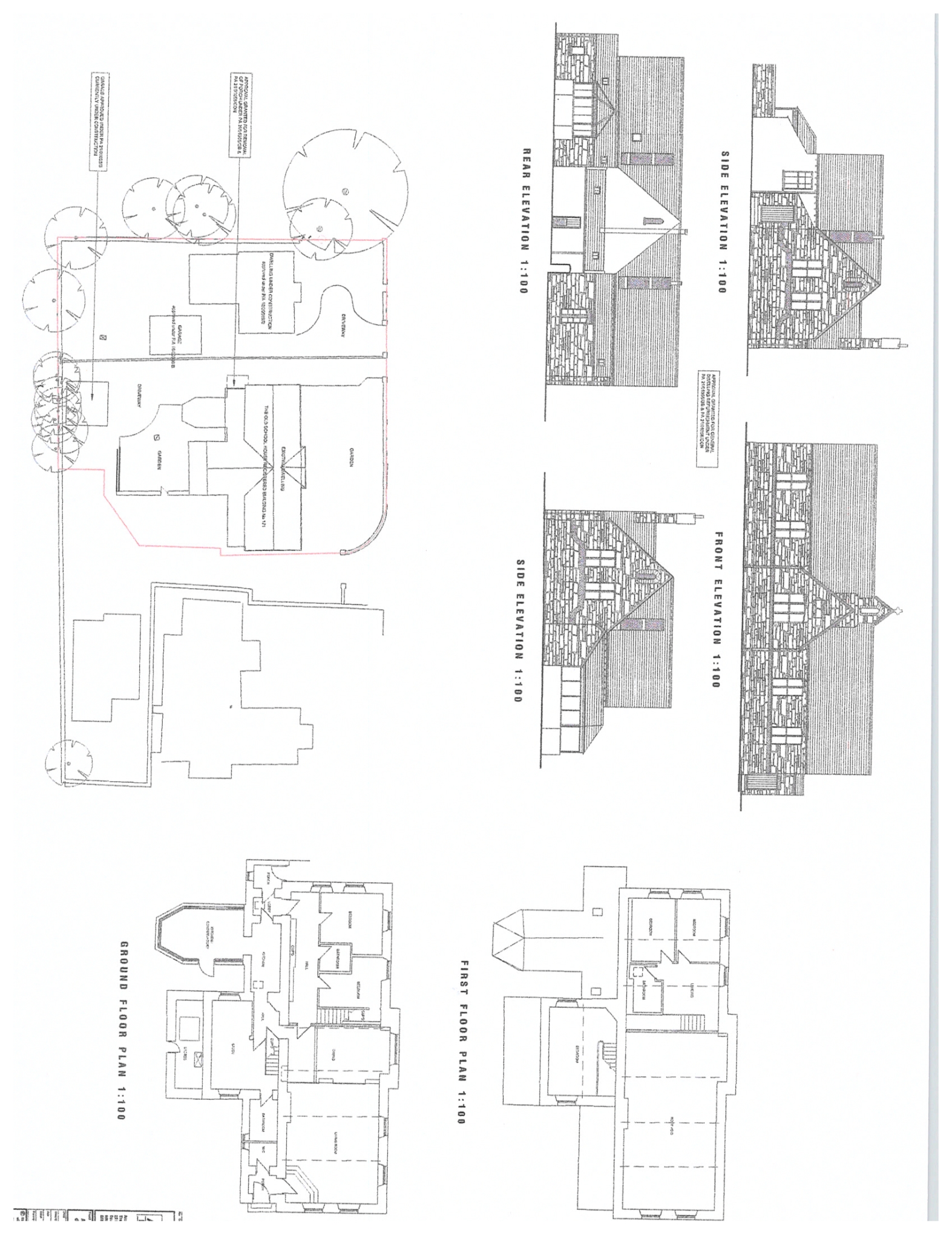
  • The property enjoys TT frontage
  • Property benefits from full planning permission (work started)

Overview

Black Grace Cowley are delighted to offer this unique opportunity to complete the refurbishment of the Old School House in Sulby. The property is a registered building maintaining Edwardian features internally, with attractive external Manx stone appearance.

The current vendor has achieved full planning to convert the property into a residential dwelling that would consist of 4 large En-Suite Bedrooms. The Master Bedroom would include a walkthrough Dressing Room and En-Suite with stairs to a bedroom area, creating a duplex feel. Original features include the school hall which would be adapted to a living room with large Velux windows, providing full height natural light, with views up to the galleried landing providing a study space or additional living accommodation. Opportunity for a large modern kitchen diner, spacious entrance hall and guest cloakroom.

The property is double-fronted with a private driveway leading to the rear of the property, where there is a newly constructed two-car oak frame carport. The grounds to the rear of the property could become a large landscaped south facing courtyard/garden area enjoying rural views to the rear.

The property requires completion. In Black Grace Cowley’s opinion, once completed, there is the potential for The Old School House to achieve a value in excess of one million pounds. For more information, including more detail of the planning, please call Black Grace Cowley on 01624 645555.

At a Glance

  • Price
    £520,000
  • Status
    For Sale
  • Bedrooms
    4
  • Reception Rooms
    1
  • Bathrooms
    4
  • En Suite
    4
  • Heating
    Oil fired central heating
  • Front Garden
    Yes
  • Rear Garden
    Yes
  • Garage
    Yes

Contact the Agent

Contact the Agent

Mark Canty

mrc@blackgracecowley.com

01624 645559

Key Features

  • Opportunity to complete the refurbishment of a registered former School House in Sulby
  • Extending to approximately 4,700 sq.ft.
  • 4 Bedrooms, 4 Bathrooms, including a duplex Master Suite, Galleried Landing and Study Area
  • Entrance Hall, Living Room, Modern Kitchen Diner
  • Landscaped Courtyard and Garden
  • 2 Car Oak frame Carport to the rear
  • The property enjoys TT frontage
  • Property benefits from full planning permission (work started)

Recently Viewed Properties

The Old School House
Main Road, Sulby

£520,000

  • 4
  • 4
  • 1
1 Glen Close
Glen Maye

£449,000

  • 4
  • 1
  • 3
21 Marathon Drive
Douglas

£142,950

  • 3
  • 1
  • 2