11 Ballabridson Park, Ballasalla

£449,950

Key Features

  • Detached split level family home situated in a popular residential area
  • 5 minutes drive to Ronaldsway Airport and 15 minutes drive to Douglas
  • Would benefit from some general updating
  • Spacious Lounge Diner, Kitchen, Conservatory
  • Ground floor En Suite Bedroom
  • 3 further Bedrooms and Family Bathroom on the upper floor
  • Integral double Garage with 2 electric up and over doors
  • Driveway parking for 2 cars
  • Good sized rear garden overlooking the Steam Railway track
  • uPVC double glazing, propane gas central heating
  • No onward chain

Overview

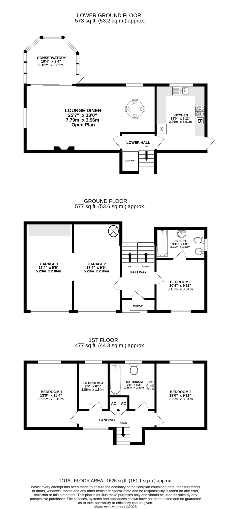
Black Grace Cowley are delighted to offer 11 Ballabridson Park to the market. This spacious split level family home is situated in a popular residential are in Ballasalla, only 5 minutes drive from Ronaldsway Airport and 15 minutes drive from Douglas. The property would benefit from some general updating throughout. The property is accessed via a patio sliding door leading into the porch, then a uPVC door leads into the entrance hall. To the right of the hallway is Bedroom 3, a good sized double bedroom overlooking the front of the property, door to En Suite Bathroom fitted with a 4 piece suite comprising panelled bath with shower over, pedestal wash hand basin, bidet and W.C. Off to the left of the hallway is a door leading into Garage 1 housing the hot water cylinder with open access to Garage 2.

Taking the stairs down to the lower ground floor where the Kitchen, Lounge Diner and Conservatory can be found. The spacious kitchen is fitted with a range of white base, drawer and wall units, gas hob with oven below and extractor over, space for fridge freezer, door to side garden. To the other side of the lower ground floor hallway is the 25 ft Lounge Diner with feature fireplace and patio doors leading into the large uPVC glazed Conservatory and door to rear garden.

From the ground floor hallway take the stairs to the upper floor where 3 further bedrooms and family bathroom can be found off the landing. Situated at the rear of the property, Bedroom 2 is a good sized double bedroom with uPVC double glazed window overlooking the rear garden, providing distant sea views and Steam Railway train track views. The family bathroom is fitted with a 3 piece coloured suite comprising bath with shower over, pedestal wash hand basin and toilet. Along the landing is Bedroom 4 which is a single Bedroom/Study. Also situated at the rear of the property, Bedroom 1 is a good sized double bedroom with uPVC double glazed window providing distant sea views and again overlooking the Steam Railway track.

To the front of the property is a paved patio and block paved driveway parking for 2 cars. Enclosed rear garden with views over the Steam Railway tracks mainly laid to lawn with paved pathway around to the front of the property, space for shed and stepped access to parking.

To arrange a viewing please contact Black Grace Cowley on 01624 645555.

At a Glance

  • Price
    £449,950
  • Status
    Under Offer
  • Bedrooms
    4
  • Reception Rooms
    2
  • Bathrooms
    2
  • En Suite
    1
  • Heating
    Propane gas central heating
  • Front Garden
    Yes
  • Rear Garden
    Yes
  • Garage
    Yes

Contact the Agent

Contact the Agent

Susan Taylorson

susan@blackgracecowley.com

01624 645561

Key Features

  • Detached split level family home situated in a popular residential area
  • 5 minutes drive to Ronaldsway Airport and 15 minutes drive to Douglas
  • Would benefit from some general updating
  • Spacious Lounge Diner, Kitchen, Conservatory
  • Ground floor En Suite Bedroom
  • 3 further Bedrooms and Family Bathroom on the upper floor
  • Integral double Garage with 2 electric up and over doors
  • Driveway parking for 2 cars
  • Good sized rear garden overlooking the Steam Railway track
  • uPVC double glazing, propane gas central heating
  • No onward chain

Recently Viewed Properties

Under Offer
11 Ballabridson Park
Ballasalla

£449,950

  • 4
  • 2
  • 2